20/30
Paylaş
Resmi Orjinal Boyutunda Göster
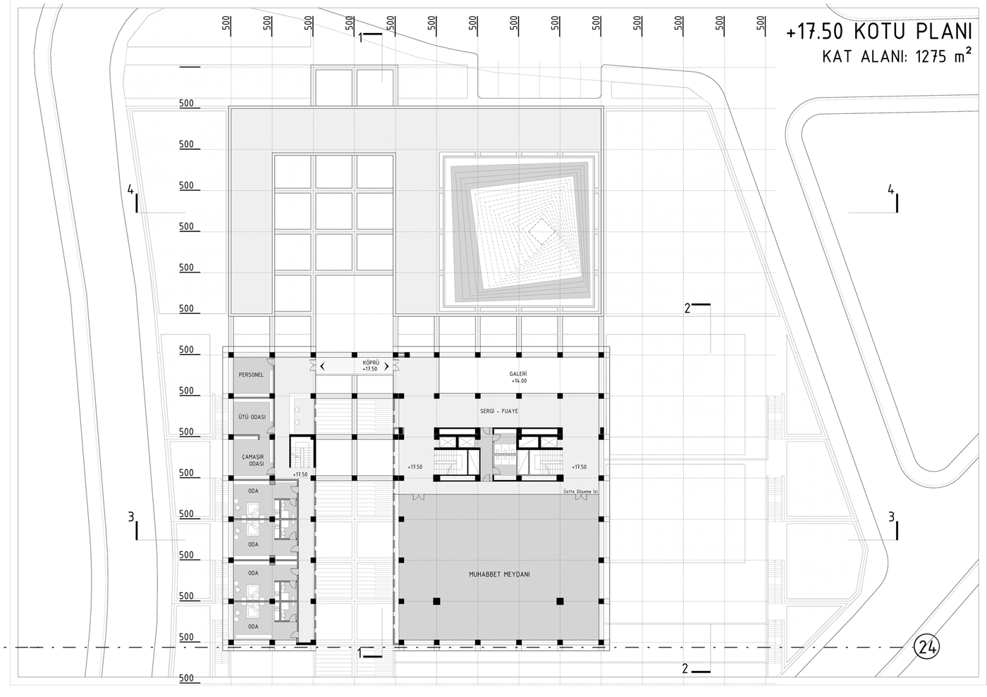
Gülsuyu Cemevi Ulusal Mimari Proje Yarışması
Proje Yeri: İstanbul, Maltepe, Gülsuyu Mahallesi
Proje Ofisi: OfficePAN Mimarlık, NODE Architects
Proje Tipi: Cemevi, Kültür Merkezi
Proje Tipi Grubu: Katılımcı
Tasarım Ekibi: Cihan Sevindik, Zeynep Canan Aksu, Doğan Türkkan
Yardımcı: İnan Tokay, Mustafa Elönü, Eda Özyalçın