44/50
Paylaş
Resmi Orjinal Boyutunda Göster
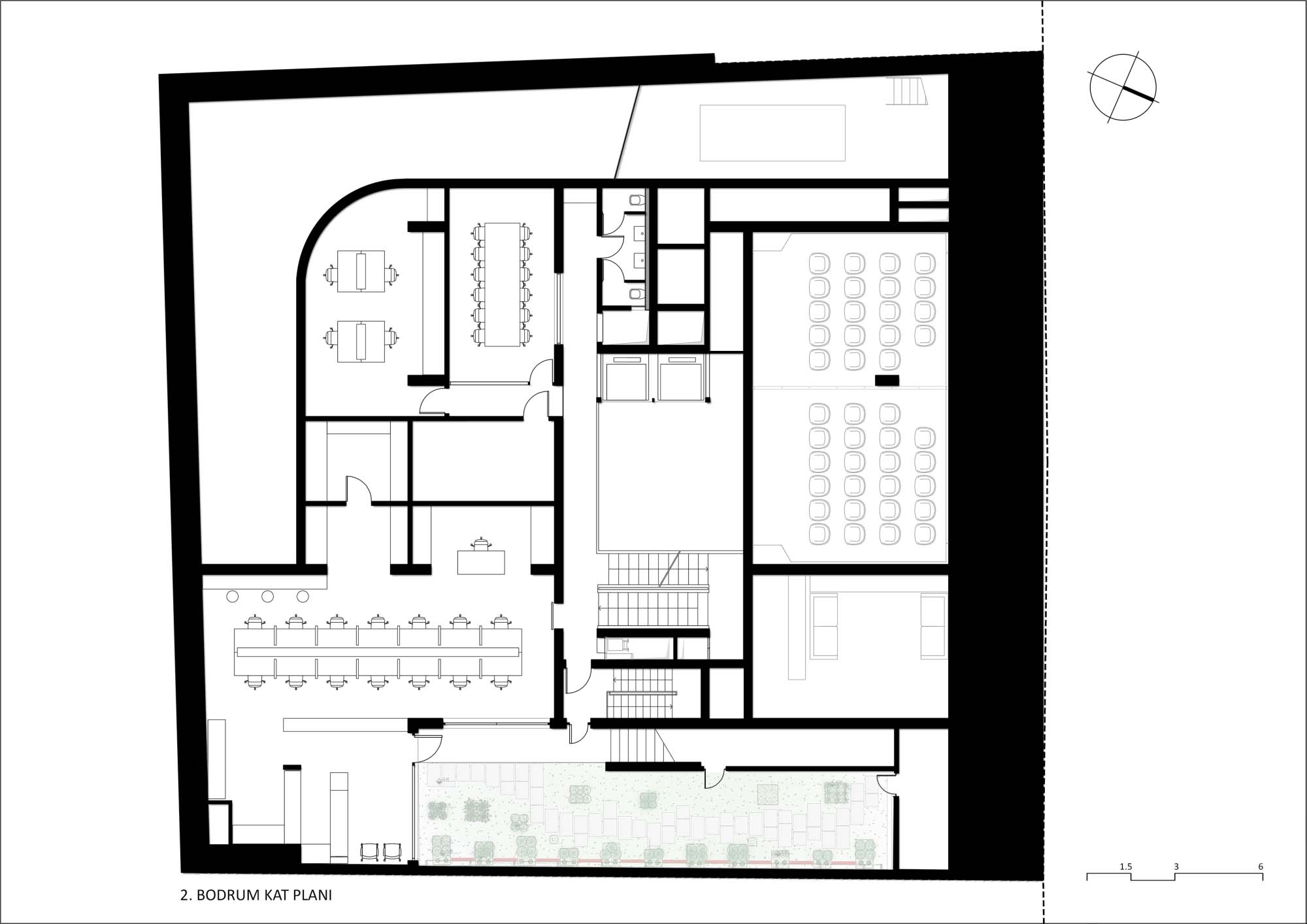
Protel Binası
Proje Yeri: Şişli, İstanbul
Proje Ofisi: HS Mimarlık
Proje Tipi: Ofis
Proje Tipi Grubu: Ticari
Tasarım Ekibi: Hayriye Sözen
Mimari Proje Ekibi: Erman Soyman, Gamze Altın, Zeynep Ünal, Çiğdem Köseoğlu, Pınar Bayraktar
İşveren: Protel Bilgisayar, Metin Arghan
Ana Yüklenici: Sanat Yapı İnşaat
Peyzaj Mimarlığı: DS Mimarlık
İç Mekan Projesi: HS Mimarlık
Proje Yöneticisi: Rıdvan Övünç
Uygulama Projesi: HS Mimarlık
Cephe Tasarımı: HS Mimarlık
Aydınlatma Projesi: UKON Aydınlatma
Statik Projesi: SOM Mühendislik
Mekanik Projesi: ANKA Proje Danışmanlık
Elektrik Projesi: HB Teknik Elektrik Mühendislik
Akustik Danışmanı: Talayman Akustik
Yangın Tahliye Projesi: TASARIM Mühendislik Proje
Fotoğraf: Yercekim Mimari Fotograf
Proje Başlangıç Yılı: 2012
Proje Bitiş Yılı: 2013
İnşaat Başlangıç Yılı: 2013
İnşaat Bitiş Yılı: 2015
Arsa Alanı: 826 m2
Toplam İnşaat Alanı: 4,950 m2