18/26
Paylaş
Resmi Orjinal Boyutunda Göster
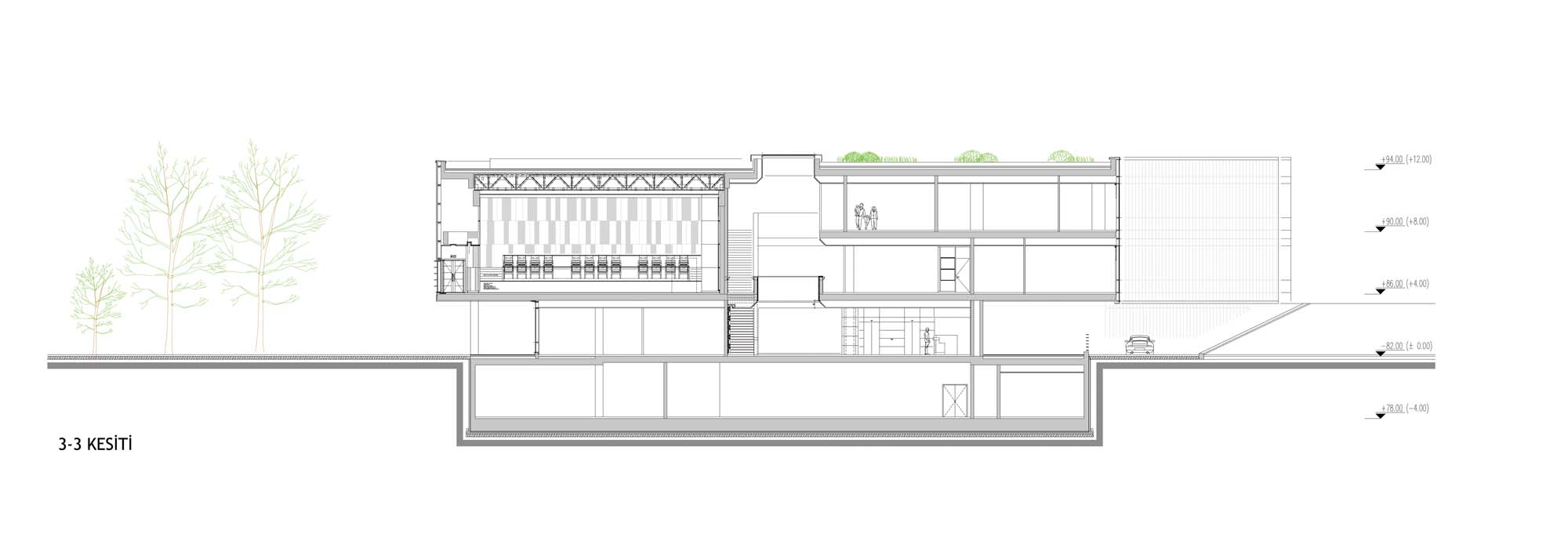
Çukurova İlçe Belediyesi Hizmet Binası ve Kültür Merkezi
Project Location: Çukurova, Adana
Project Office: MTF Proje (Mimari Tasarım Fikirleri)
Project Type: Cultural Center, Belediye Hizmet Binası
Proje Tipi Grubu: Kamu, Kültür
Tasarım Ekibi: Derya Ekim Öztepe, Ozan Öztepe, Deniz Ekim Çubukçu, Z.Sofia Török
Employer: Çukurova Belediyesi
Yardımcı: Umut Sert
Peyzaj Mimarlığı: Çukurova Belediyesi
Interior Architecture: MTF Proje (Mimari Tasarım Fikirleri)
Projcet Manager: Kopmaz İnşaat
Structural Project: Ata Şehir Proje
Mechanical Project: Ata Şehir Proje, Tempo
Electrical Project: Atabar
Akustik Projesi: Deda Sahne
Photography: Ozan Öztepe, Uğur Ceylan
Project Start Date: 2011
Project End Date: 2012
Construction Start Date: 2012
Construction End Date: 2013
Building Plot Area: 12,860 m2
Total Construction Area: 17,100 m2