7/8
Paylaş
Resmi Orjinal Boyutunda Göster
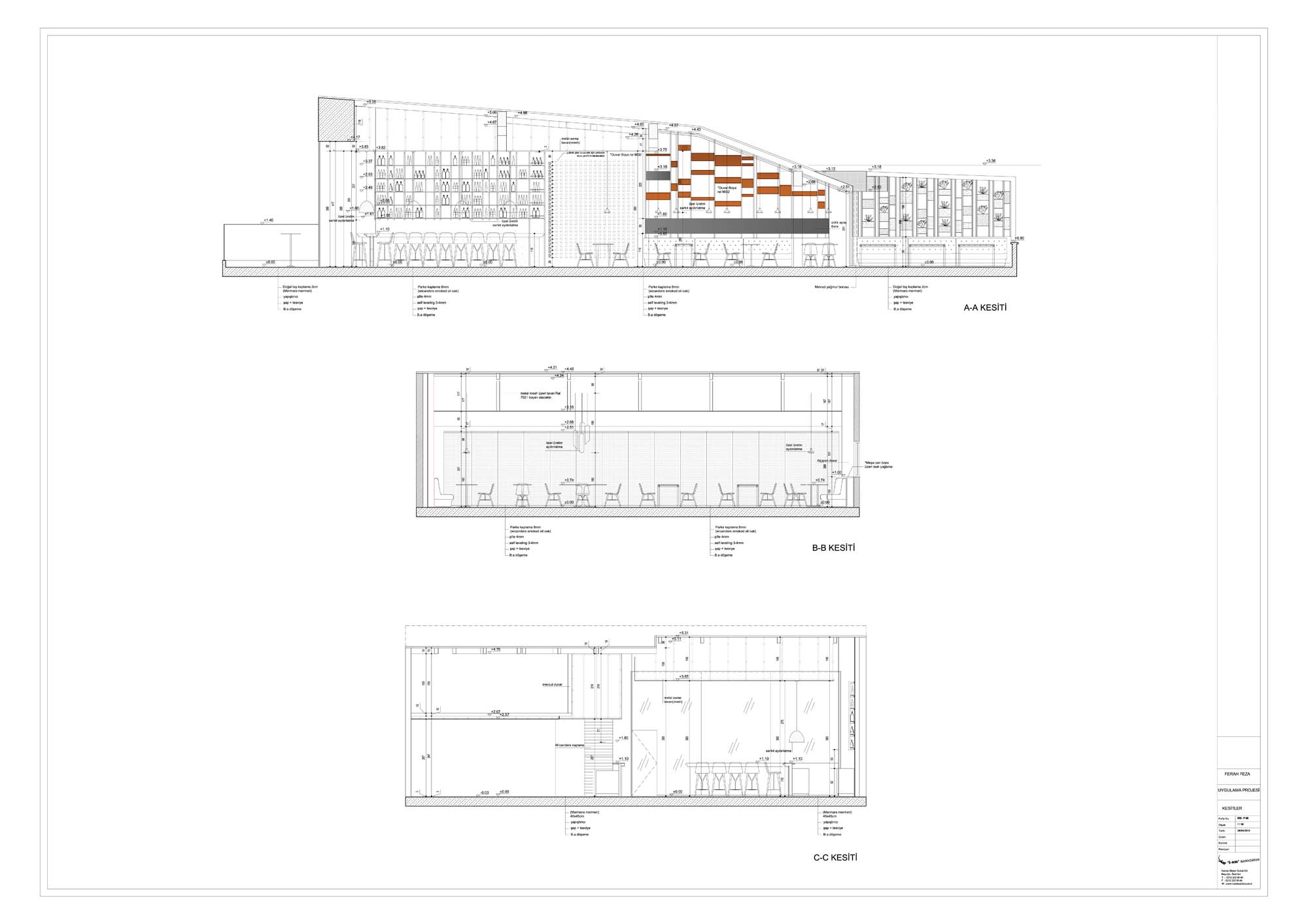
FerahFeza
Proje Yeri: İstanbul
Proje Ofisi: I-AM
Proje Tipi: Restoran / Kafe / Bar
Proje Tipi Grubu: Ticari
Tasarım Ekibi: Emre Kuzlu, Pınar Ünlü, Merve Köklü, Arda Yeniay, Meral Göktekin, Sinem Arık
Mimari Proje Ekibi: Emre Kuzlu, Arda Yeniay, İlknur Demirlenk, Özlem Bağdiken, Pınar Ünal, Meral Göktekin, Merve Köklü, Sinem Arık, Deniz Özgör, Kenan Gemici, Bahar Okucu
İşveren: L’IST
Ana Yüklenici: I-AM
İç Mekan Projesi: I-AM
Uygulama Projesi: I-AM
Aydınlatma Projesi: I-AM
Mekanik Projesi: Kül Mühendislik
Elektrik Projesi: Izoterm
Tesisat Projesi: Izoterm
Fotoğraf: İbrahim Özbunar
Mimari Mesleki Kontrollük: I-AM, Kenan Gemici, Bahar Okucu
Şantiye Yöneticisi: Siska Mimarlık, Emre Susam
Proje Başlangıç Yılı: 2013
Proje Bitiş Yılı: 2013
İnşaat Başlangıç Yılı: 2013
İnşaat Bitiş Yılı: 2013
Arsa Alanı: 500 m2
Toplam İnşaat Alanı: 500 m2