31/32
Paylaş
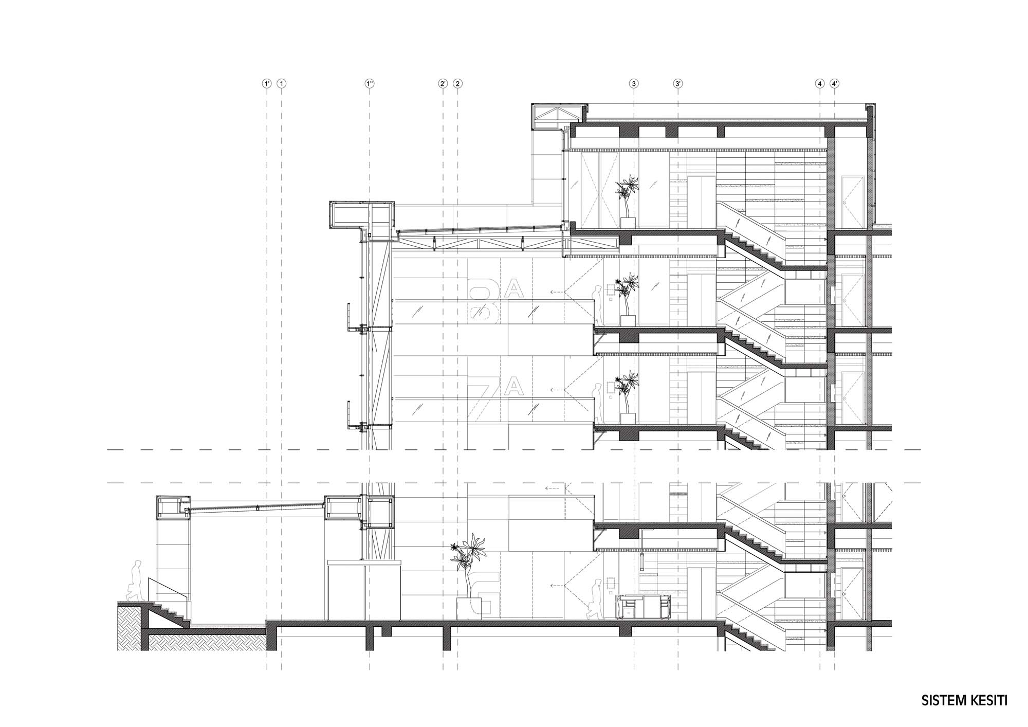
Resmi Orjinal Boyutunda Göster
Akplaza İş Merkezi
Proje Yeri: Beyoğlu, İstanbul
Proje Ofisi: Manço Mimarlık
Proje Tipi: Ofis
Proje Tipi Grubu: Ticari
Tasarım Ekibi: Aytaç Manço, Ali Manço
Mimari Proje Ekibi: Clemens Preloznik, Aytek Alkaya
İşveren: Akdağlar İnşaat
Yardımcı: Zühtü Usta, Zeynep Ceren Erdinç, Ece Atasoy, Gufran Baykal, Arın Tanrıkulu, Hamit Karcıoğlu, Pavel Lejdar
Ana Yüklenici: Akdağlar İnşaat
Peyzaj Mimarlığı: Hale Özkan
Proje Yöneticisi: ​Ali Tokmakoğlu, Mentor Proje Yönetimi
Statik Projesi: Yapı Akademisi
Mekanik Projesi: Klips Mühendislik
Elektrik Projesi: ERKE Sürdürülebilir Bina Tasarım Danışmanlık
Tesisat Projesi: Klips Mühendislik
Çelik Projesi: Yapı Akademisi
Altyapı Projesi: Veli Çetin
Akustik Danışmanı: Sevtap Yılmaz Demirkale
Yangın Güvenlik Danışmanı: Mustafa Özgünler
Mimari Mesleki Kontrollük: Manço Mimarlık
Şantiye Yöneticisi: İhsan Çoltu
Proje Başlangıç Yılı: 2007
Proje Bitiş Yılı: 2014
İnşaat Başlangıç Yılı: 2010
İnşaat Bitiş Yılı: 2015
Arsa Alanı: 5,532 m²
Toplam İnşaat Alanı: ​50​,713​ ​m²