4/23
Paylaş
Resmi Orjinal Boyutunda Göster
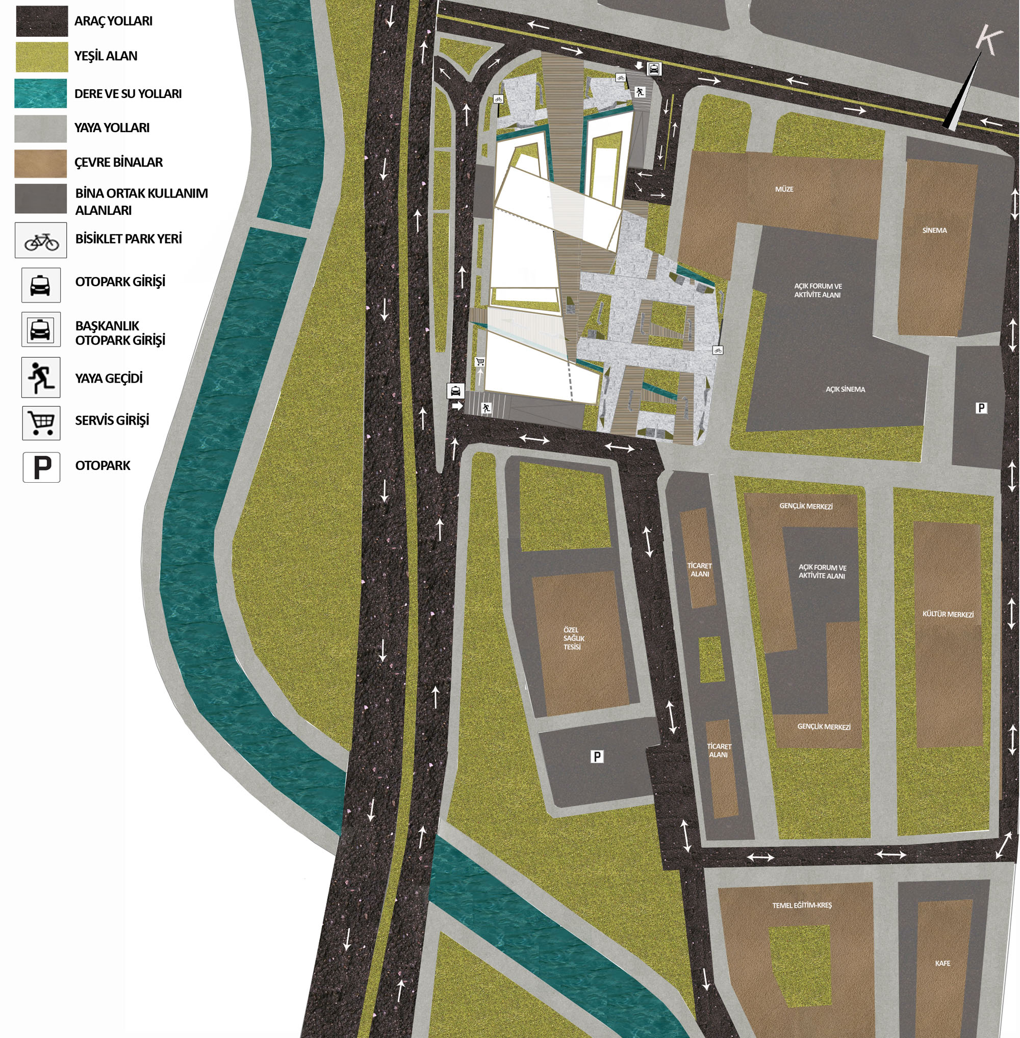
Katılımcı (Mahal Mimarlık)
Proje Yeri: İzmir
Proje Ofisi: Mahal Mimarlık
Proje Tipi: Belediye Hizmet Binası
Proje Tipi Grubu: Katılımcı
Tasarım Ekibi: Ayşe Gülçin Ural, Pınar Bayraktar, Burcu Tüm, Simge Balcı
Statik Projesi: Bilge Çınar Uslu
Mekanik Projesi: Baran Tanrıverdi
Elektrik Projesi: Murat Emre Mert