22/25
Paylaş
Resmi Orjinal Boyutunda Göster
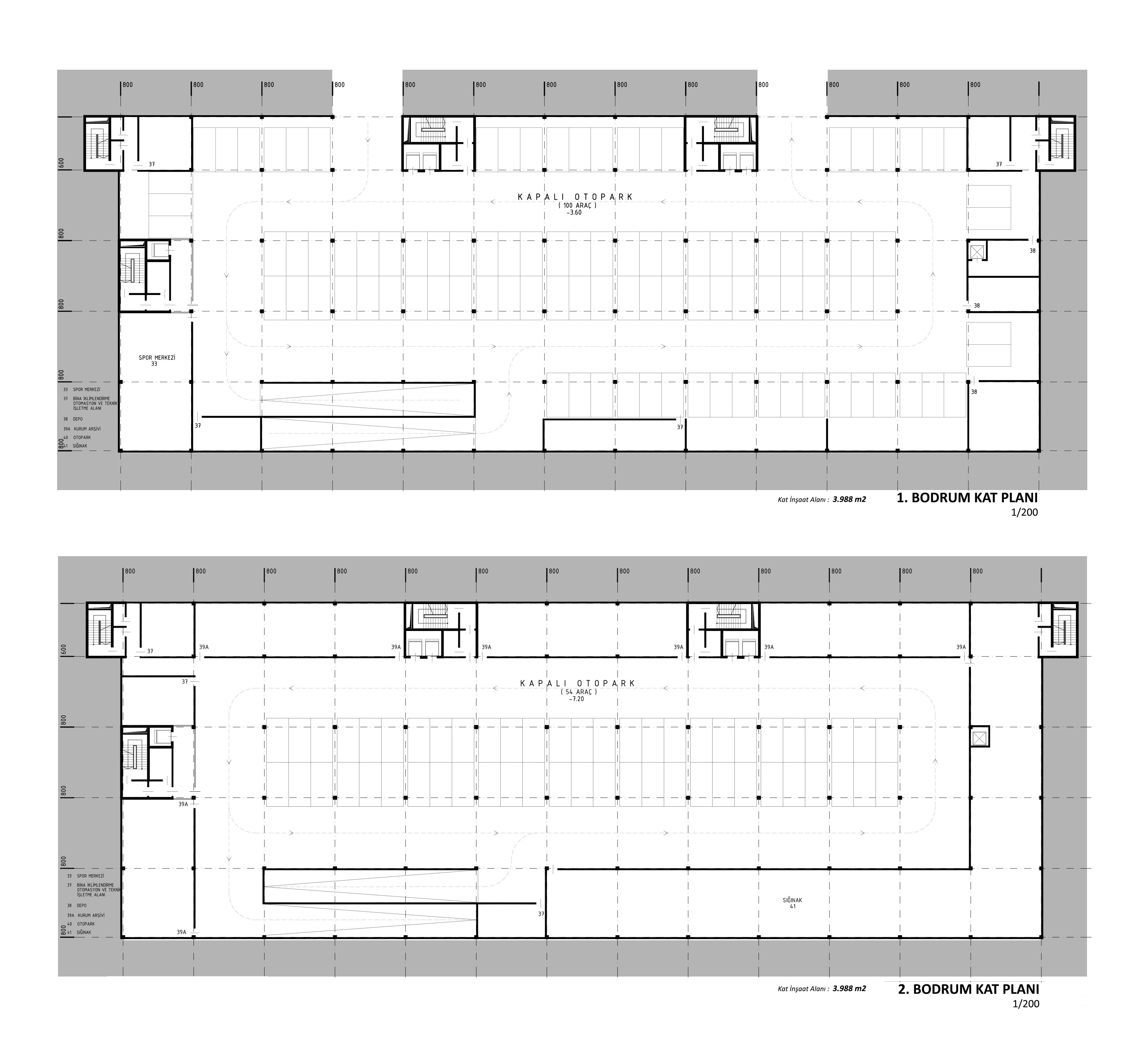
Katılımcı (SN Mimarlık), Konak Belediyesi Hizmet Binası Mimari Proje Yarışması
Proje Yeri: İzmir
Proje Ofisi: SN Mimarlık
Proje Tipi: Belediye Hizmet Binası
Proje Tipi Grubu: Katılımcı
Tasarım Ekibi: Süleyman Akkaş, Nihal Şenkaya Akkaş
Yardımcı: Cihat Ömer Akgün, Bahar Taşçı, Yasin Gül