13/35
Paylaş
Resmi Orjinal Boyutunda Göster
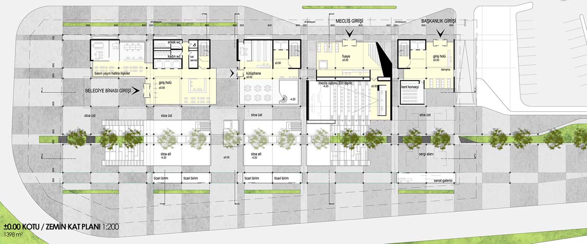
2. Ödül Konak Belediyesi Hizmet Binası Mimari Proje Yarışması
Proje Yeri: İzmir, Konak
Proje Ofisi: Studio Evren Başbuğ
Proje Tipi: Belediye Hizmet Binası
Proje Tipi Grubu: 2. Ödül
Tasarım Ekibi: Evren Başbuğ, Özlem Arvas, Can Özcan, Deren Uysal
Danışman: Tamer Başbuğ, Dilşad Kurtoğlu
Yardımcı: Seçil Telyakar, Esin Uçkun, Dilan Sak
Statik Projesi: Cemal Coşak
Mekanik Projesi: Necdet Tunalı
Elektrik Projesi: A. Levent Ünal