17/24
Paylaş
Resmi Orjinal Boyutunda Göster
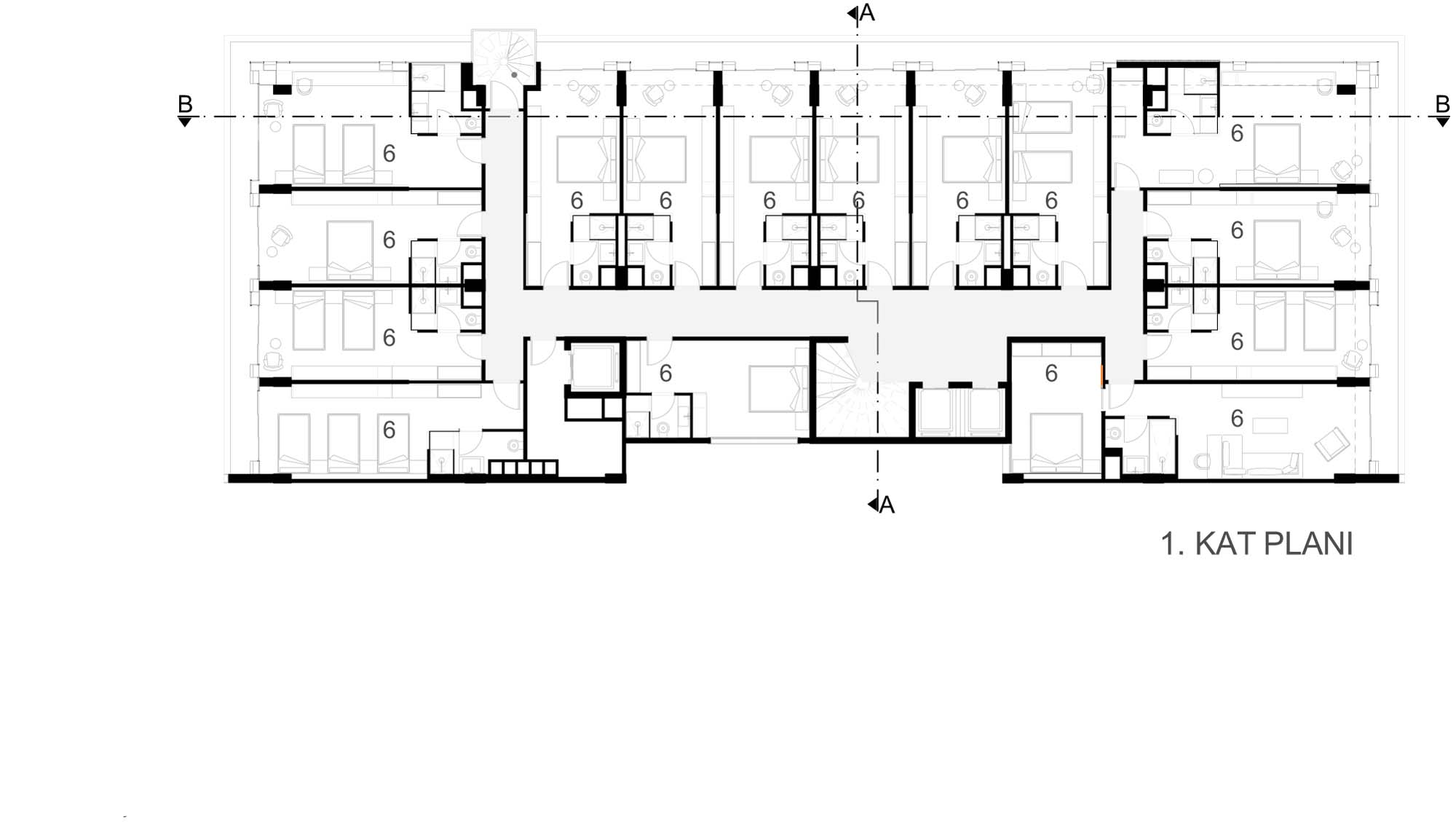
İlayda Avantgarde Otel
Proje Yeri: Kuşadası, Aydın
Proje Ofisi: Demirce Norms
Proje Tipi: Otel / Motel
Proje Tipi Grubu: Konaklama
Tasarım Ekibi: Alpay Demirci, Burçin Demirci, Belgin Utma
İşveren: İlayda Turizm
Ana Yüklenici: Serdar Yılmaz
Proje Başlangıç Yılı: 2012
Proje Bitiş Yılı: 2013
İnşaat Başlangıç Yılı: 2014
İnşaat Bitiş Yılı: 2014
Arsa Alanı: 950 m²
Toplam İnşaat Alanı: 8.500 m²