3/3
Paylaş
Resmi Orjinal Boyutunda Göster
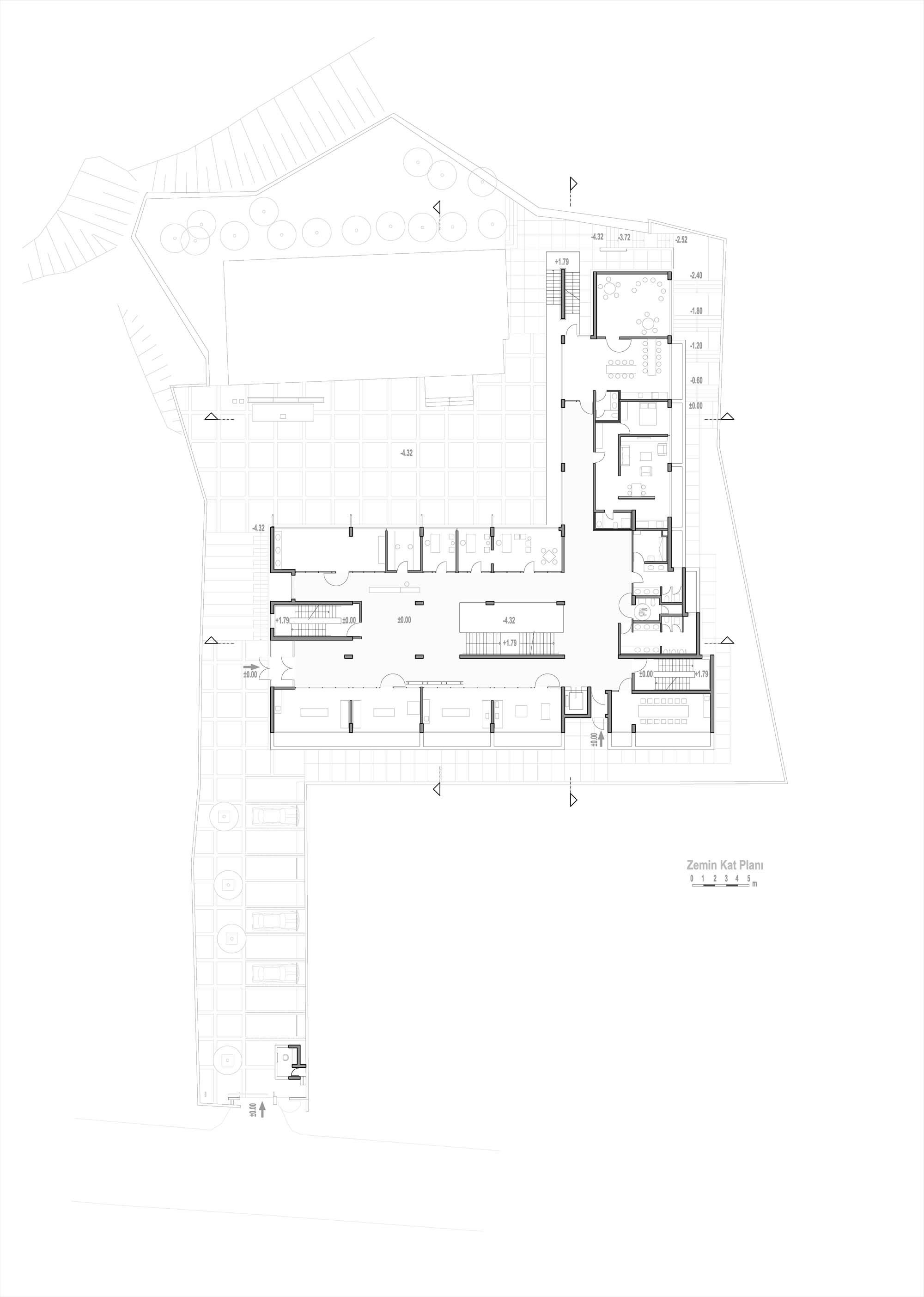
Saadet Özel Eğitim ve Mesleki Eğitim Merkezi (Okulu)
Project Location: Şişli, İstanbul
Project Office: Uygur Mimarlık
Project Type: High School
Proje Tipi Grubu: Eğitim
Tasarım Ekibi: Semra Uygur, Özcan Uygur
Employer: İstanbul Sismik Riskin Azaltılması ve Acil Durum Hazırlık Projesi (İSMEP)
Yardımcı: Berkant Özmen, Necati Seren, Güliz Erkan, Emine Kirman
Ana Yüklenici: Can İnşaat
Peyzaj Mimarlığı: Derya Duman, Kemal Özgür, Can Kubin
Structural Project: Dursun Özsaraç, Levent Aksaray
Mechanical Project: Bahri Türkmen
Electrical Project: Kemal Ovacık
Project Start Date: 2010
Project End Date: 2011
Construction Start Date: 2011
Construction End Date: 2013
Building Plot Area: 3,143 m2
Total Construction Area: 4,995 m2