6/6
Paylaş
Resmi Orjinal Boyutunda Göster
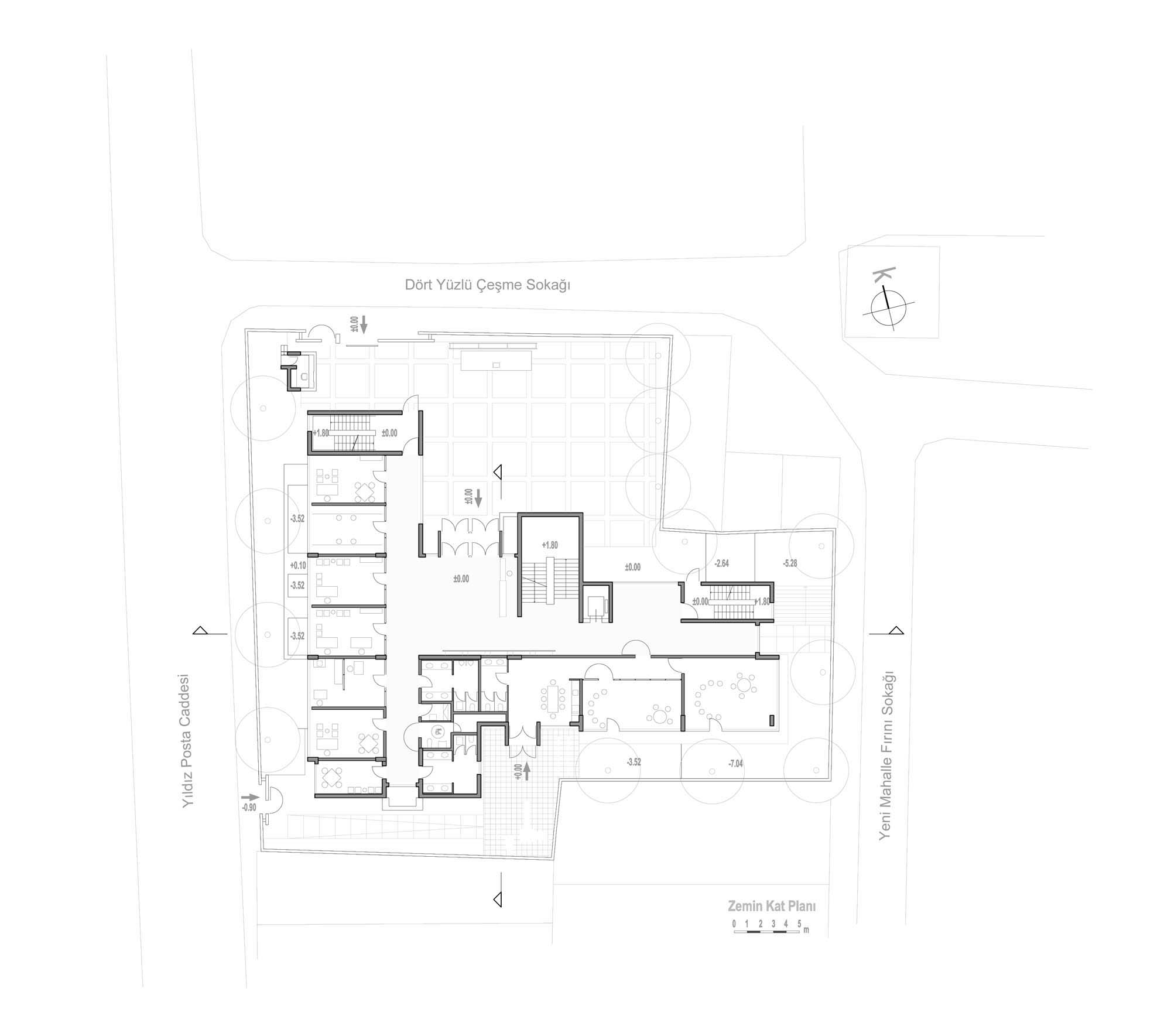
Beşiktaş İlkokulu
Project Location: Beşiktaş, İstanbul
Project Office: Uygur Mimarlık, Vista Proje
Project Type: İlkokul
Proje Tipi Grubu: Eğitim
Tasarım Ekibi: Semra Uygur, Özcan Uygur
Employer: İstanbul Sismik Riskin Azaltılması ve Acil Durum Hazırlık Projesi (İSMEP)
Yardımcı: Güliz Erkan, Emine Kirman, Ayşegül Erin, Türker Kesiktaş, Necati Seren, Murat K. Aydoğmuş
Ana Yüklenici: Nuhoğlu İnşaat
Peyzaj Mimarlığı: Derya Duman, Kemal Özgür, Can Kubin
Structural Project: Dursun Özsaraç, Levent Aksaray
Mechanical Project: Bahri Türkmen
Electrical Project: Kemal Ovacık
Project Start Date: 2010
Project End Date: 2011
Construction Start Date: 2011
Construction End Date: 2013
Building Plot Area: 1,467 m2
Total Construction Area: 3,958 m2