8/8
Paylaş
Resmi Orjinal Boyutunda Göster
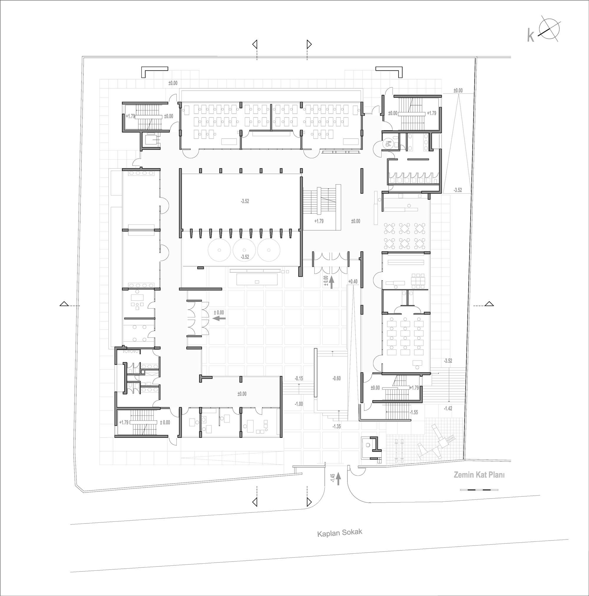
Bayrampaşa Mesleki ve Teknik Anadolu Lisesi
Proje Yeri: Bayrampaşa, İstanbul
Proje Ofisi: Uygur Mimarlık
Proje Tipi: Lise / Ortaöğretim
Proje Tipi Grubu: Eğitim
Tasarım Ekibi: Semra Uygur, Özcan Uygur
İşveren: İstanbul Sismik Riskin Azaltılması ve Acil Durum Hazırlık Projesi (İSMEP)
Yardımcı: Necati Seren, Güliz Erkan, Emine Kirman, Hüseyin Atakan, Ebru Can Bilhan
Ana Yüklenici: Can İnşaat
Peyzaj Mimarlığı: Derya Duman, Kemal Özgür, Can Kubin
Statik Projesi: Dursun Özsaraç, Levent Aksaray
Mekanik Projesi: Bahri Türkmen
Elektrik Projesi: Kemal Ovacık
Proje Başlangıç Yılı: 2010
Proje Bitiş Yılı: 2010
İnşaat Başlangıç Yılı: 2011
İnşaat Bitiş Yılı: 2013
Arsa Alanı: cav, , 5,901 m2
Toplam İnşaat Alanı: 7,281 m2