7/7
Paylaş
Resmi Orjinal Boyutunda Göster
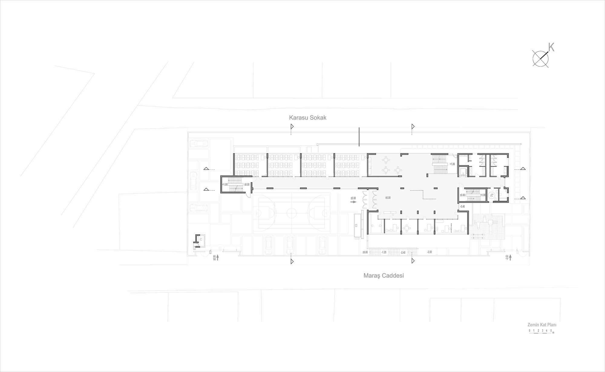
Cemal Gürsel İlköğretim Okulu
Proje Yeri: Gaziosmanpaşa, İstanbul
Proje Ofisi: Uygur Mimarlık, Ofis 16 Mimarlık
Proje Tipi: İlkokul
Proje Tipi Grubu: Eğitim
Tasarım Ekibi: Semra Uygur, Özcan Uygur
İşveren: İstanbul Sismik Riskin Azaltılması ve Acil Durum Hazırlık Projesi (İSMEP)
Yardımcı: Necati Seren, Güliz Erkan, Hüseyin Atakan, Ebru Can Bilhan, Eser Köken İşleyici, Zümral Aygüler Kartal, Sevda Özkan İmamoğlu
Ana Yüklenici: Mustafa Ekşi İnşaat
Peyzaj Mimarlığı: Derya Duman, Kemal Özgür, Can Kubin
Statik Projesi: Dursun Özsaraç, Levent Aksaray
Mekanik Projesi: Bahri Türkmen
Elektrik Projesi: Kemal Ovacık
Proje Başlangıç Yılı: 2011
Proje Bitiş Yılı: 2012
İnşaat Başlangıç Yılı: 2013
İnşaat Bitiş Yılı: 2014
Arsa Alanı: 2,066 m2
Toplam İnşaat Alanı: 6,430 m2