9/9
Paylaş
Resmi Orjinal Boyutunda Göster
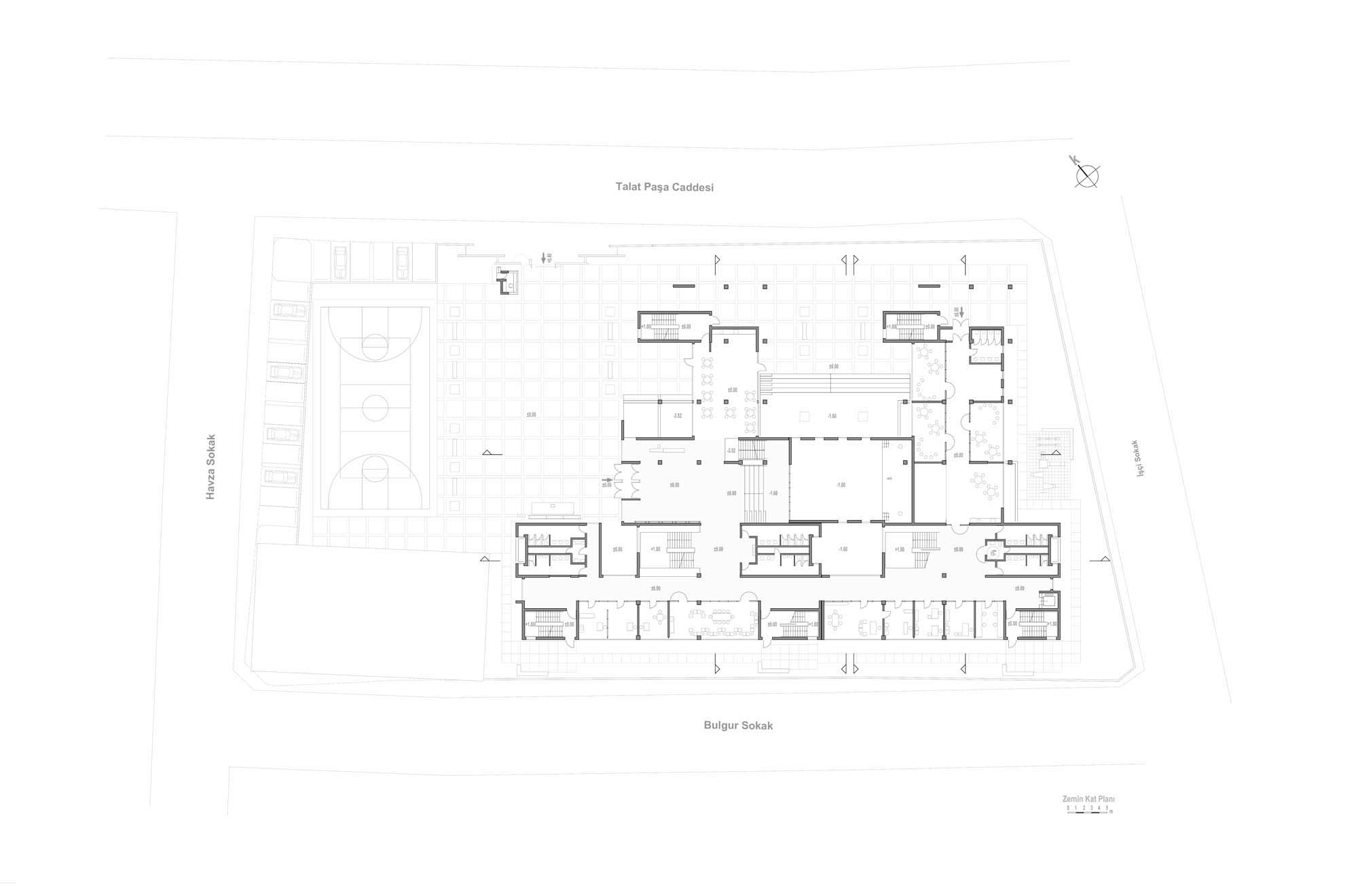
Gültepe Anadolu İmam Hatip Ortaokulu
Project Location: Kağıthane, İstanbul
Project Office: Uygur Mimarlık
Project Type: İlkokul
Proje Tipi Grubu: Eğitim
Tasarım Ekibi: Semra Uygur, Özcan Uygur
Employer: İstanbul Sismik Riskin Azaltılması ve Acil Durum Hazırlık Projesi (İSMEP)
Yardımcı: Berkant Özmen, Necati Seren, Güliz Erkan, Ebru Can Bilhan, Dilşad Kurtoğlu
Ana Yüklenici: DEMARS İnşaat
Peyzaj Mimarlığı: Derya Duman, Kemal Özgür
Structural Project: Dursun Özsaraç, Levent Aksaray
Mechanical Project: Bahri Türkmen
Electrical Project: Kemal Ovacık
Project Start Date: 2010
Project End Date: 2010
Construction Start Date: 2011
Construction End Date: 2012
Building Plot Area: 6,007 m2
Total Construction Area: 9,461 m2