5/5
Paylaş
Resmi Orjinal Boyutunda Göster
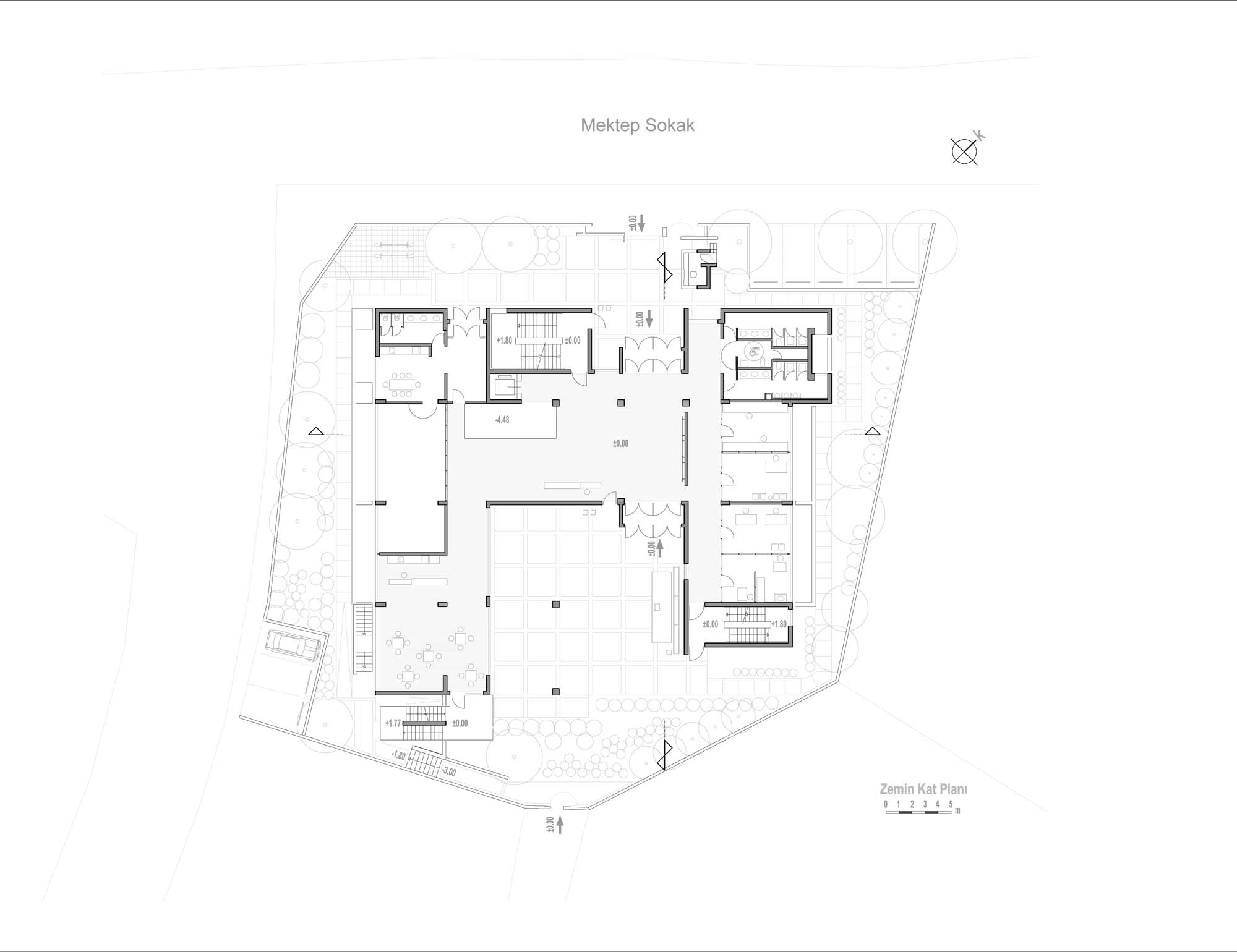
Deniz İş İlköğretim Okulu
Proje Yeri: Üsküdar
Proje Ofisi: Uygur Mimarlık
Proje Tipi: İlkokul
Proje Tipi Grubu: Eğitim
Tasarım Ekibi: Semra Uygur, Özcan Uygur
İşveren: İstanbul Sismik Riskin Azaltılması ve Acil Durum Hazırlık Projesi (İSMEP)
Yardımcı: Berkant Özmen, Necati Seren, Güliz Erkan, Ebru Can Bilhan, Dilşad Kurtoğlu
Ana Yüklenici: İNTA Mühendislik
Peyzaj Mimarlığı: Derya Duman, Kemal Özgür, Can Kubin
Statik Projesi: Dursun Özsaraç, Levent Aksaray
Mekanik Projesi: Bahri Türkmen
Elektrik Projesi: Kemal Ovacık
Proje Başlangıç Yılı: 2010
Proje Bitiş Yılı: 2010
İnşaat Başlangıç Yılı: 2011
İnşaat Bitiş Yılı: 2013
Arsa Alanı: 3,030 m2
Toplam İnşaat Alanı: 4,178 m2