1/1
Paylaş
Resmi Orjinal Boyutunda Göster
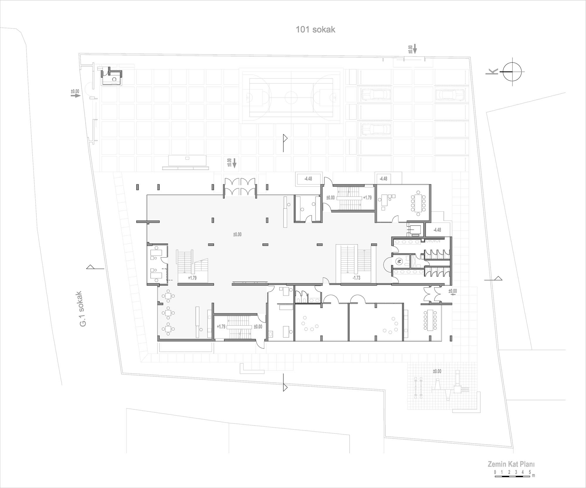
Şemsettin Sami İlköğretim Okulu
Project Location: Zeytinburnu, İstanbul
Project Office: Uygur Mimarlık
Project Type: İlkokul
Proje Tipi Grubu: Eğitim
Tasarım Ekibi: Semra Uygur, Özcan Uygur
Employer: İstanbul Sismik Riskin Azaltılması ve Acil Durum Hazırlık Projesi (İSMEP)
Yardımcı: Berkant Özmen, Necati Seren, Güliz Erkan, Ebru Can Bilhan, Dilşad Kurtoğlu
Peyzaj Mimarlığı: Derya Duman, Kemal Özgür, Can Kubin
Structural Project: Dursun Özsaraç, Levent Aksaray
Mechanical Project: Bahri Türkmen
Electrical Project: Kemal Ovacık
Project Start Date: 2010
Project End Date: 2010
Building Plot Area: 2,761 m²
Total Construction Area: 6,054 m2