8/8
Paylaş
Resmi Orjinal Boyutunda Göster
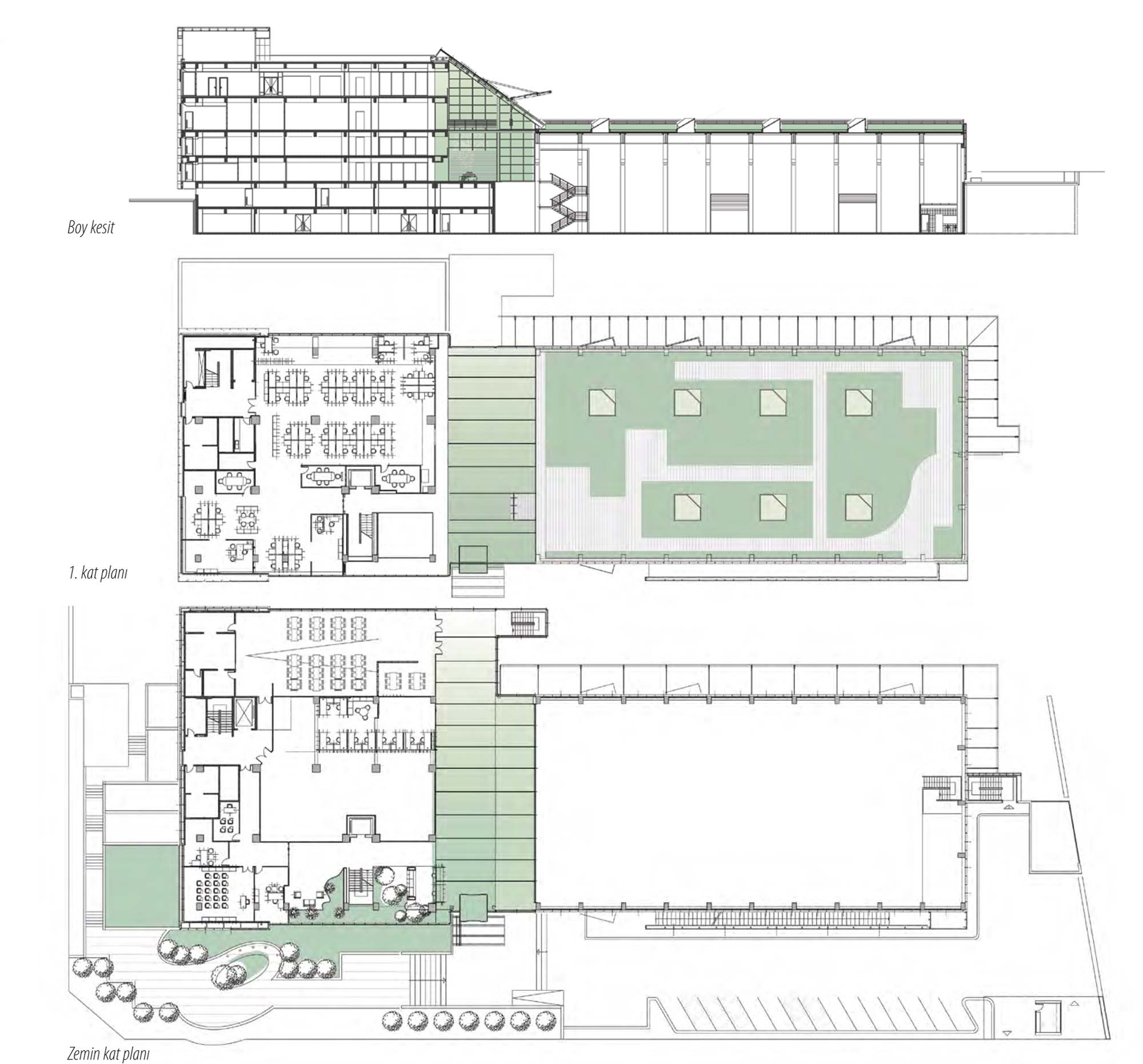
Altınay Robotik Yönetim ve Üretim Merkezi
Proje Yeri: İstanbul
Proje Ofisi: SE Mimarlık
Proje Tipi: Ofis, Fabrika
Proje Tipi Grubu: Endüstriyel
Tasarım Ekibi: Selim Velioğlu, Erce Funda, Sunay Yusuf
İşveren: Altınay Robotik
Proje Başlangıç Yılı: 2004
Proje Bitiş Yılı: 2004
İnşaat Başlangıç Yılı: 2004
İnşaat Bitiş Yılı: 2005
Toplam İnşaat Alanı: 7,000 m²