3/3
Paylaş
Resmi Orjinal Boyutunda Göster
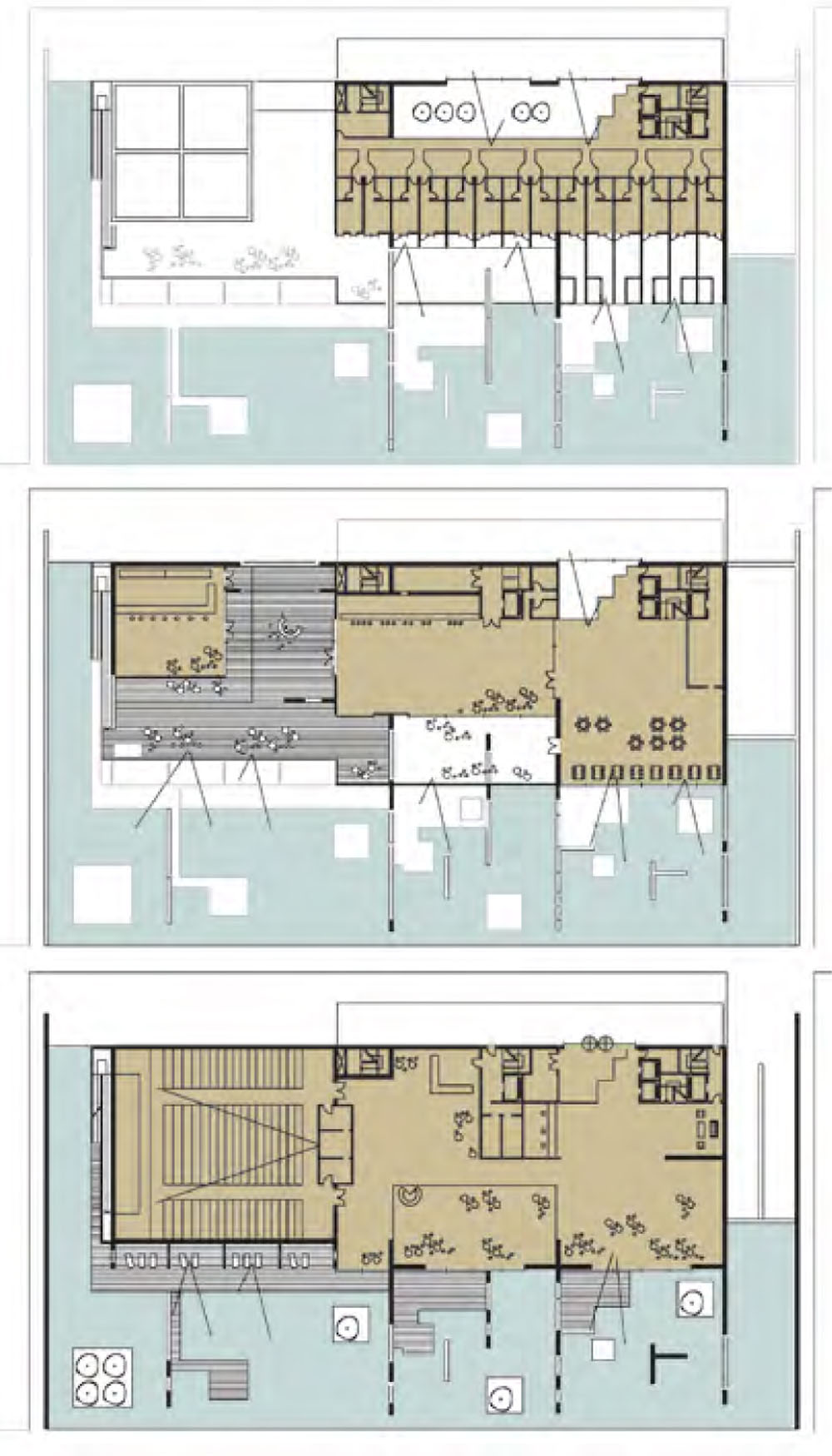
Bayraklı Oteli
Proje Yeri: İzmir
Proje Ofisi: SE Mimarlık
Proje Tipi: Otel / Motel
Proje Tipi Grubu: Konaklama
Tasarım Ekibi: Selim Velioğlu, Can Özsavaşçı, Erce Funda
İşveren: Bayraklı Holding
Proje Başlangıç Yılı: 2008