3/3
Paylaş
Resmi Orjinal Boyutunda Göster
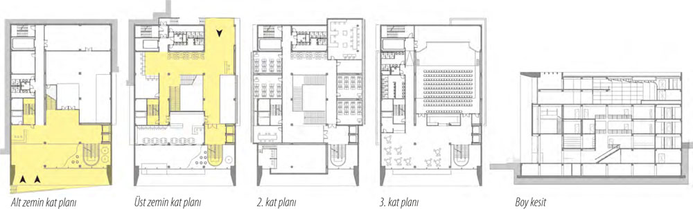
Sultangazi Kültür Merkezi
Project Location: İstanbul, Sultangazi
Project Office: SE Mimarlık
Project Type: Cultural Center
Proje Tipi Grubu: Kültür
Tasarım Ekibi: Selim Velioğlu, Erce Funda, Ersen Gömleksiz
Employer: İstanbul Büyükşehir Belediyesi
Project Start Date: 2011
Project End Date: 2011
Total Construction Area: 7,000 m²