4/4
Paylaş
Resmi Orjinal Boyutunda Göster
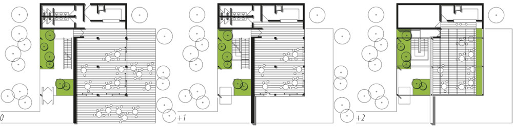
Namık Kemal Üniversitesi Sosyal Merkezi
Project Location: Tekirdağ
Project Office: SE Mimarlık
Project Type: Social Facility
Proje Tipi Grubu: Commercial, Eğitim
Tasarım Ekibi: Selim Velioğlu, Erce Funda
Employer: Namık Kemal Üniversitesi Rektörlüğü
Project Start Date: 2010
Total Construction Area: 450 m2