2/2
Paylaş
Resmi Orjinal Boyutunda Göster
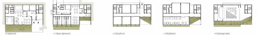
Kağıthane Sosyal Merkezi
Project Location: İstanbul, Kağıthane
Project Office: SE Mimarlık
Project Type: Social Facility
Proje Tipi Grubu: Kültür
Tasarım Ekibi: Selim Velioğlu, Erce Funda, Ersen Gömleksiz
Employer: Kağıthane Belediyesi
Project Start Date: 2011
Project End Date: 2011
Construction Start Date: 2013
Total Construction Area: 3,000 m²