15/18
Paylaş
Resmi Orjinal Boyutunda Göster
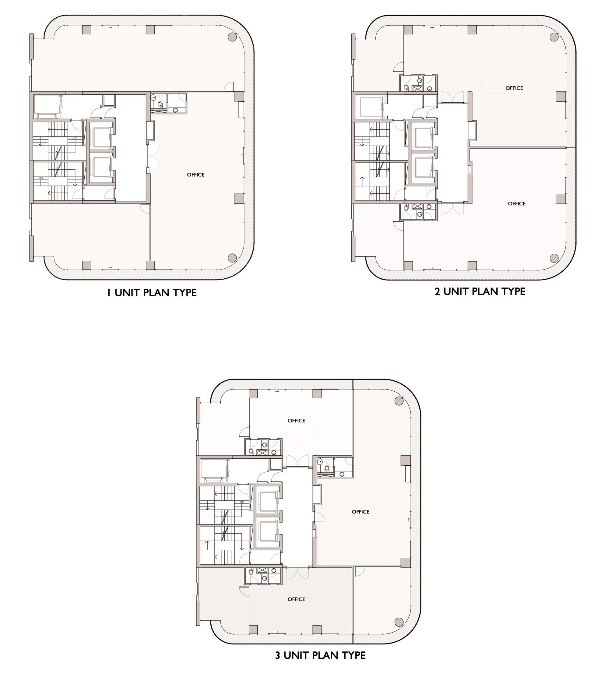
Metro Ofis
Proje Yeri: Pendik, İstanbul
Proje Ofisi: BFTA Mimarlık
Proje Tipi: Ofis
Proje Tipi Grubu: Ticari
Tasarım Ekibi: Fuat Taşkıranoğlu, Beylem Taşkıranoğlu, Miguel Zapatero, Murat Nizam, Işıl Budak
İşveren: Helis Yapı
Statik Projesi: Selim Kanbur
Mekanik Projesi: META
Elektrik Projesi: Haskar Mühendislik
Maket: ARC Maketevi
Fotoğraf: Gürkan Akay
Proje Başlangıç Yılı: 2012
İnşaat Bitiş Yılı: 2015
Toplam İnşaat Alanı: 7,500 m²