29/31
Paylaş
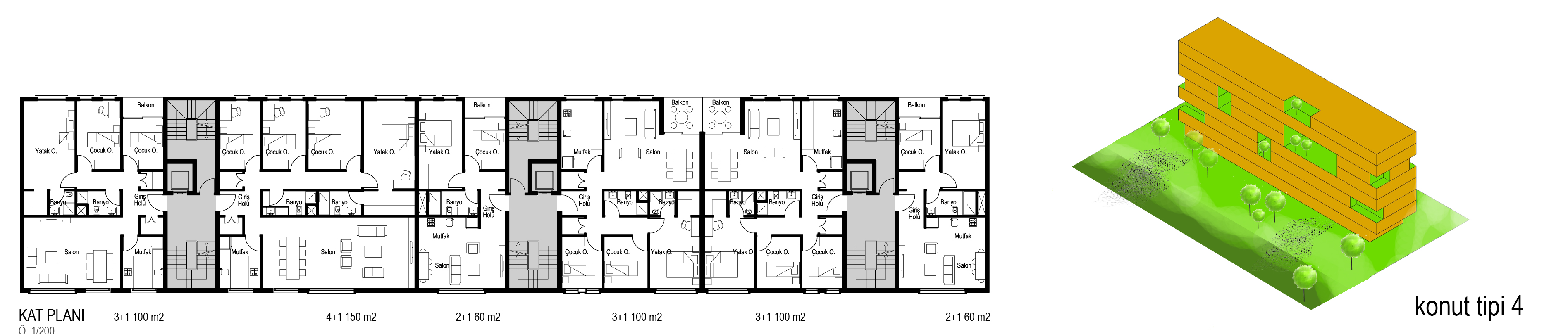
Resmi Orjinal Boyutunda Göster
Mansiyon (MartiD Mimarlık)
Proje Yeri: Gaziemir, İzmir
Proje Ofisi: M artı D Mimarlık
Proje Tipi: Kentsel Tasarım, Kent Planlama
Proje Tipi Grubu: Eşdeğer Mansiyon
Tasarım Ekibi: Metin Kılıç, Dürrin Süer, Deniz Güner, Fulya Selçuk, Ali Can Helvacıoğlu, İrem İnce, İpek Kaştaş Uzun
Yardımcı: Binnaz Uygur, Zeynep Soysal, Ali Yontucu, Enise Hatipoğlu, Merve Kartal, Gökçe Çelikbilek, Diclehan Bekir