6/6
Paylaş
Resmi Orjinal Boyutunda Göster
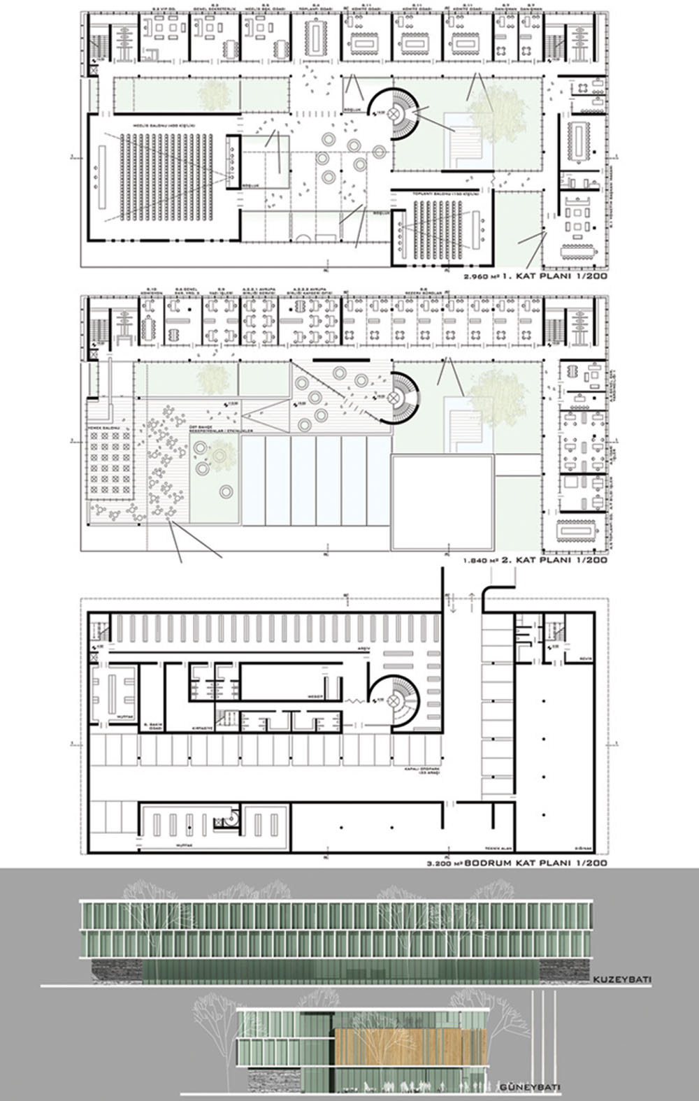
Mansiyon, Kayseri Ticaret Odası Hizmet Binası Ulusal Mimari Fikir Yarışması
Proje Yeri: Kayseri
Proje Ofisi: SE Mimarlık
Proje Tipi: Ofis
Proje Tipi Grubu: Eşdeğer Mansiyon
Tasarım Ekibi: Selim Velioğlu, Erce Funda, Orkun Özüer, Ersen Gömleksiz
İşveren: Kayseri Ticaret Odası
Proje Başlangıç Yılı: 2014
Toplam İnşaat Alanı: 10,000 m²