13/13
Paylaş
Resmi Orjinal Boyutunda Göster
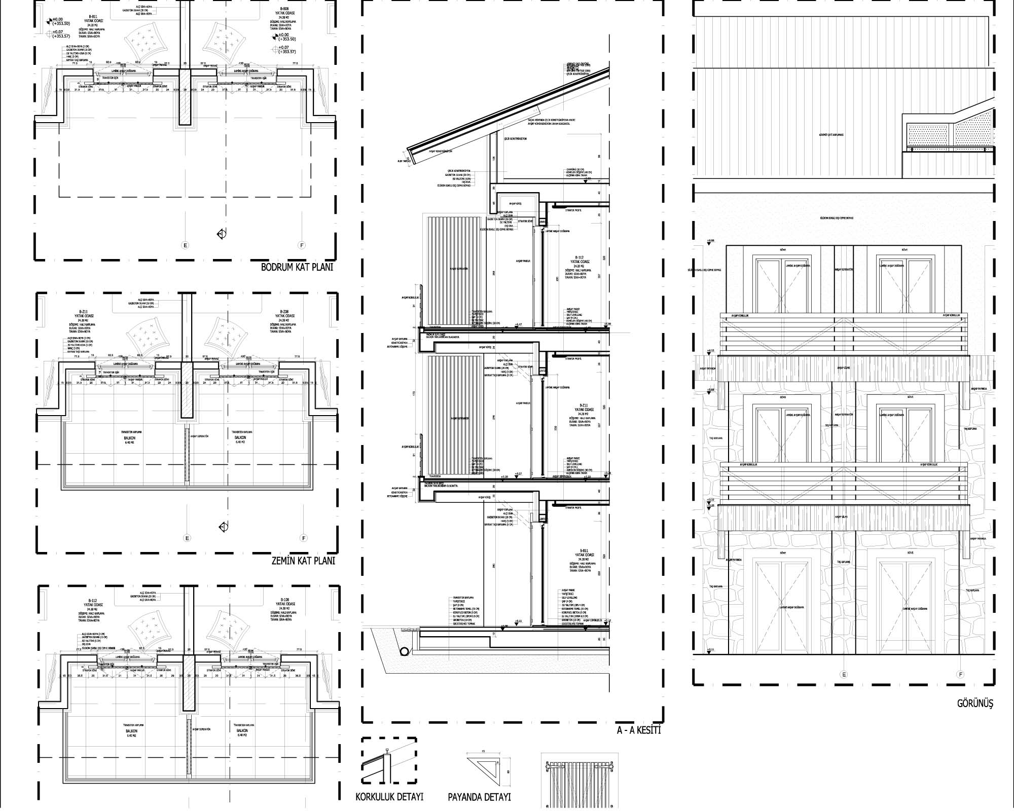
Yeşimtaşı Termal Otel
Proje Yeri: Denizli, Karahayıt
Proje Ofisi: Efekta Mimarlık
Proje Tipi: Otel / Motel
Proje Tipi Grubu: Konaklama
Tasarım Ekibi: Yüksel Öztürk, Kayhan Çakanel
İşveren: Yeşimtaşı Turizm İnşaat
Yardımcı: Erhan Özmüş, Beril Combil, Ümran Yılbaşı, Cem Yetkin
Ana Yüklenici: Yeşimtaşı Turizm İnşaat
Statik Projesi: Muhammed Çeliker
Mekanik Projesi: Desat
Elektrik Projesi: Desat
Tesisat Projesi: Desat
Proje Başlangıç Yılı: 2011
Proje Bitiş Yılı: 2012
İnşaat Başlangıç Yılı: 2012
Arsa Alanı: 16,622 m²
Toplam İnşaat Alanı: 16,122 m²