3/7
Paylaş
Resmi Orjinal Boyutunda Göster
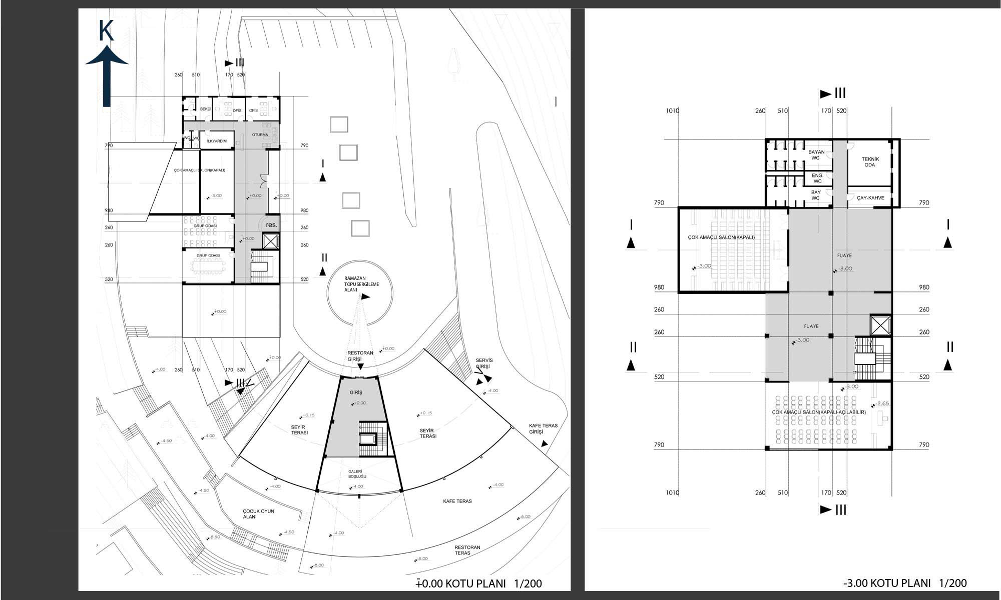
Katılımcı (Pembegül Selman), Anamur Atatepe Sosyal Merkezi ve Çevresi Ulusal Mimari Proje Yarışması
Project Location: Anamur, Mersin
Project Type: Social Facility
Proje Tipi Grubu: Katılımcı
Tasarım Ekibi: Pembegül Selman
Architectural Project Team: Fikriye Köziğ