6/8
Paylaş
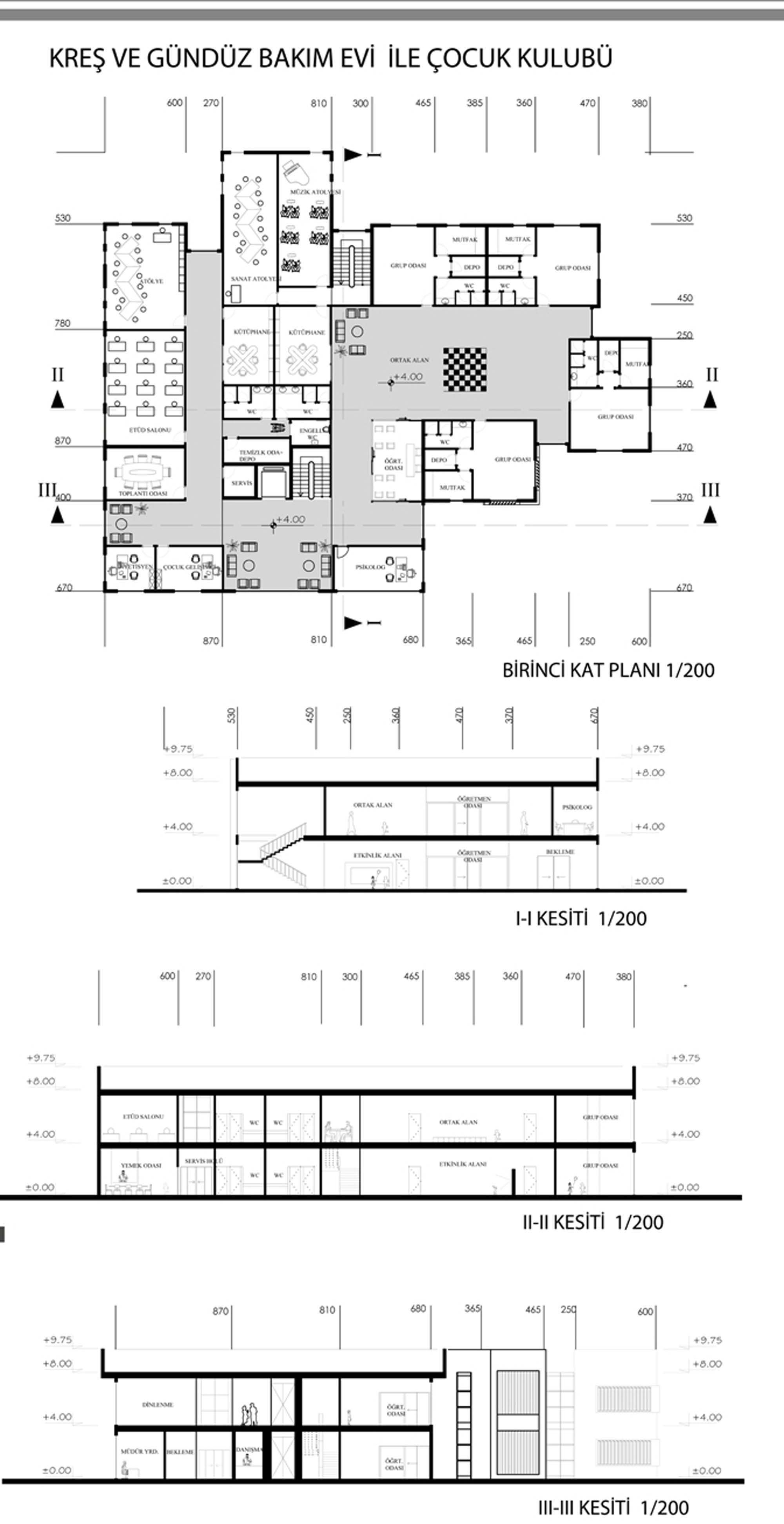
Resmi Orjinal Boyutunda Göster
Katılımcı (Pembegül Selman), Lüleburgaz Belediyesi Lüleburgaz Yıldızları Kadın Akademisi Mimari Proje Yarışması
Project Location: Lüleburgaz
Project Type: Social Facility
Proje Tipi Grubu: Katılımcı
Tasarım Ekibi: Pembegül Selman
Architectural Project Team: Fikriye Köziğ
Yardımcı: Ebubekir Bülbül