5/6
Paylaş
Resmi Orjinal Boyutunda Göster
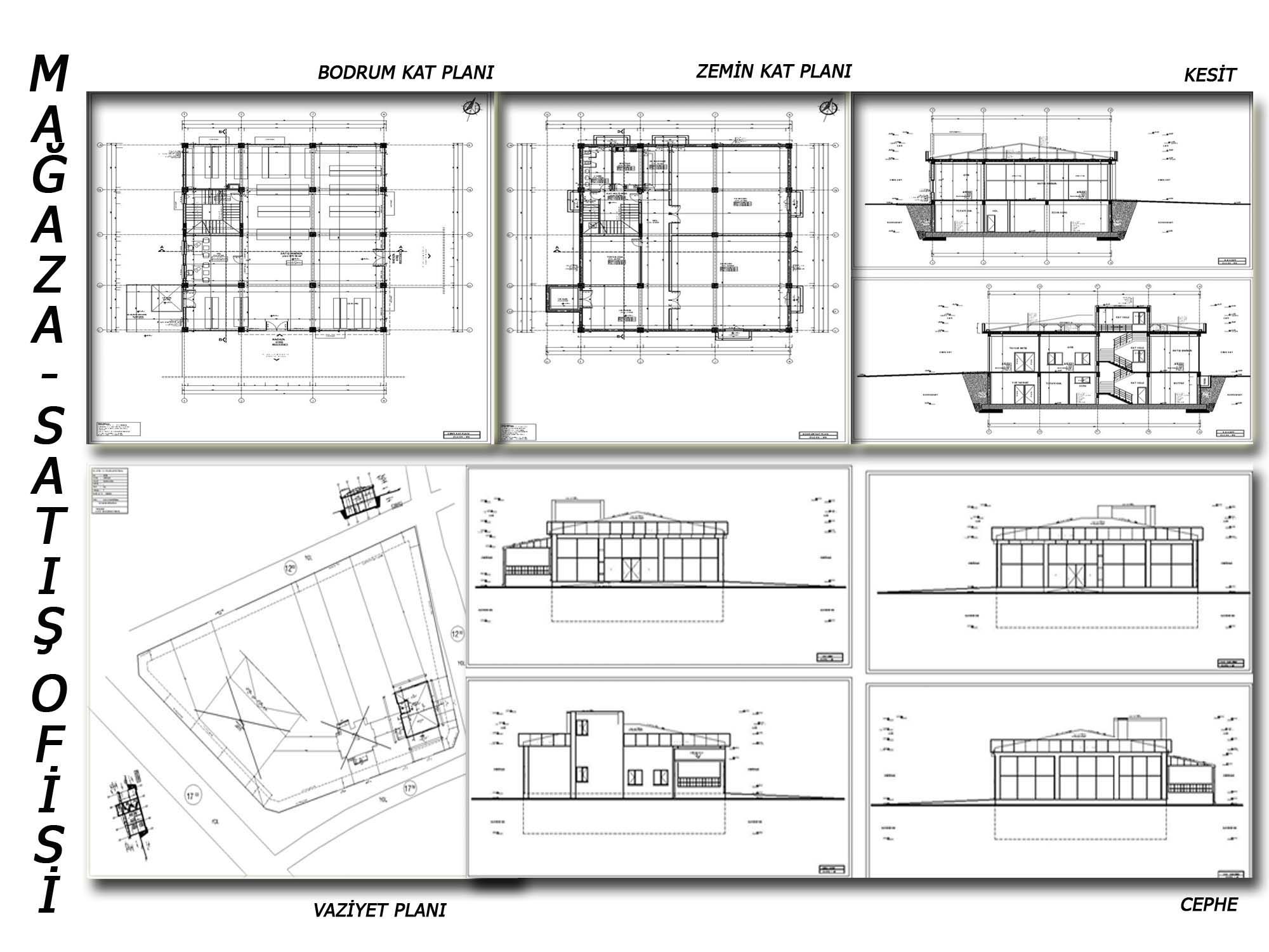
Kayseri Şeker Fabrikası Şarkışla Bölge Müdürlüğü
Proje Yeri: Sivas, Şarkışla
Proje Ofisi: Gizem Mimarlık
Proje Tipi: Ofis
Proje Tipi Grubu: Ticari
Tasarım Ekibi: Pembegül Selman
İşveren: Kayseri Şeker Fabrikası
Yardımcı: Fikriye Köziğ, Yunus Çınar
Ana Yüklenici: Çimen İnşaat
Proje Yöneticisi: Pembegül Selman
Konsept Tasarımı: Pembegül Selman
Uygulama Projesi: Pembegül Selman
Statik Projesi: Volkan Erciş, Mehmet Cihan
Mekanik Projesi: Yavuz Şimşek
Altyapı Projesi: Rezan Aktaş
Proje Başlangıç Yılı: 2014
Proje Bitiş Yılı: 2015
İnşaat Başlangıç Yılı: 2015
Arsa Alanı: 13,681 m2
Toplam İnşaat Alanı: 3,150 m2