11/16
Paylaş
Resmi Orjinal Boyutunda Göster
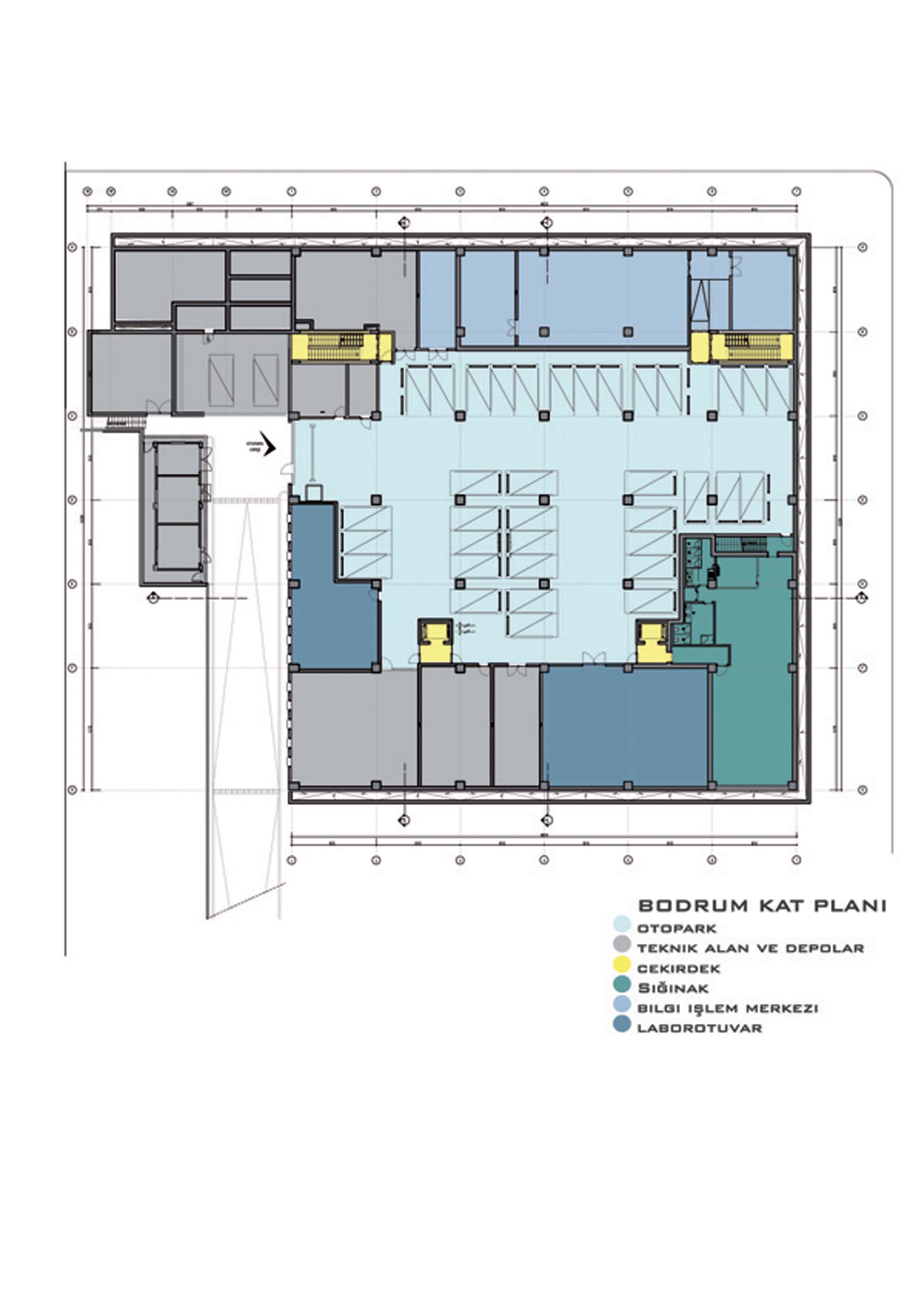
Tarımsal İzleme ve Bilgi Sistemi Merkez Binası
Proje Yeri: Sarıyer, İstanbul
Proje Ofisi: İltay Mimarlık
Proje Tipi: Ofis, Ar-Ge Binası
Proje Tipi Grubu: Endüstriyel
Tasarım Ekibi: Lüftü Ünver, Ebru Ünver
İşveren: İstanbul Teknik Üniversitesi (İTÜ) Rektörlüğü
Danışman: Hasan Şener, İltay Enerji
Yardımcı: Müjgan Pehlivan, Dilek Çankır, İlknur Karlı, Erdinç Bekar, Esra Özkonuksever
İç Mekan Projesi: İltay Mimarlık
Proje Yöneticisi: Ebru Ünver
Konsept Tasarımı: İltay Mimarlık
Uygulama Projesi: İltay Mimarlık
Cephe Tasarımı: İltay Mimarlık
Aydınlatma Projesi: Rengin Ünver
Statik Projesi: YBT Yapısal Tasarım Hizmetleri (YBTAS)
Mekanik Projesi: Doreng Mühendislik
Tesisat Projesi: Doreng Mühendislik, ATLANTİS Elektrik
Proje Başlangıç Yılı: 2012
Proje Bitiş Yılı: 2014
İnşaat Başlangıç Yılı: 2015
Arsa Alanı: 7,500 m²
Toplam İnşaat Alanı: 13,600 m2