14/29
Paylaş
Resmi Orjinal Boyutunda Göster
Başlığı girin
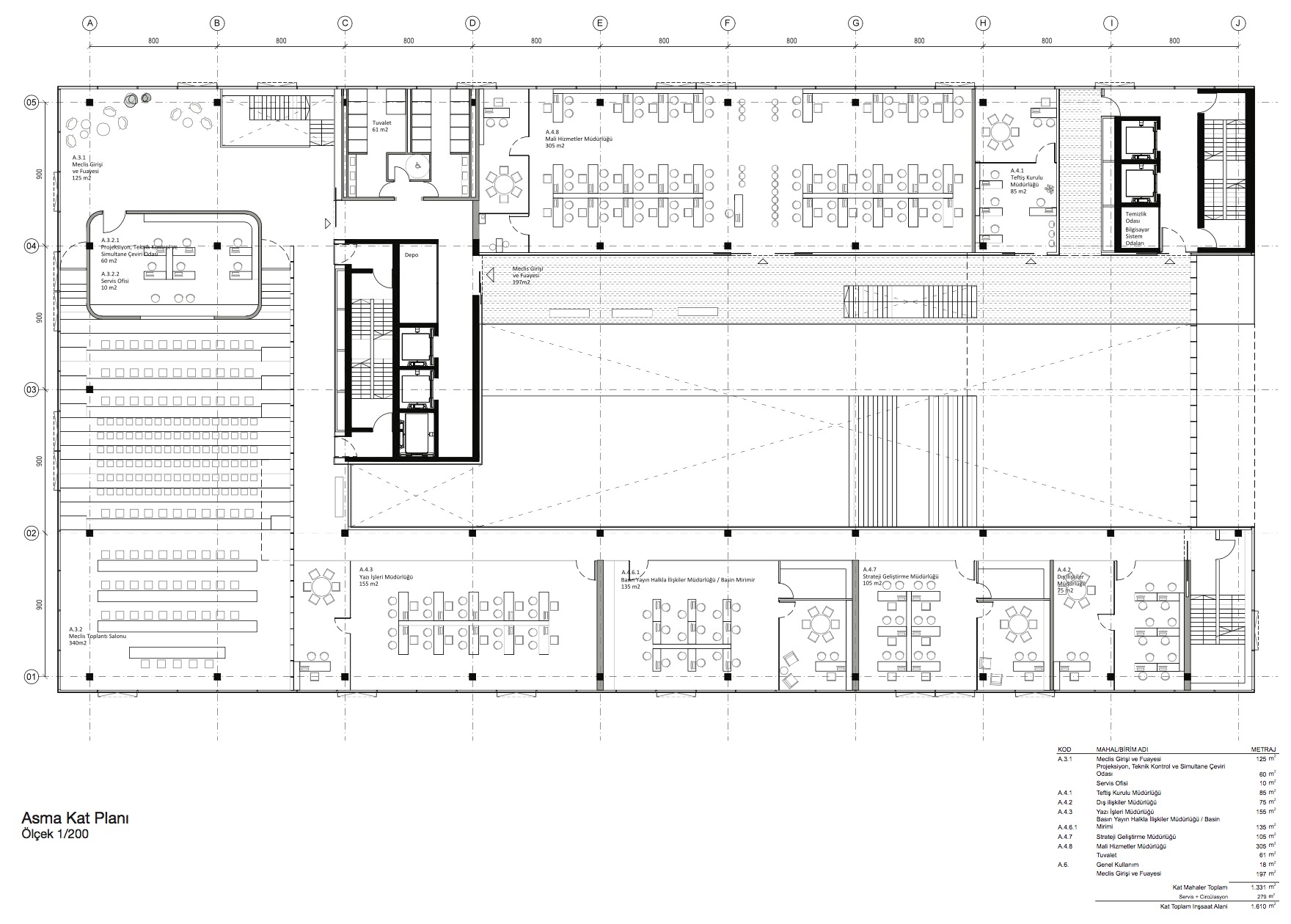
Proje Yeri: İzmir, Bornova
Proje Ofisi: IND [Inter.National.Design]
Proje Tipi: Belediye Hizmet Binası
Proje Tipi Grubu: 5. Mansiyon
Tasarım Ekibi: Arman Akdoğan, Felix Madrazo, Ahmet Arıkan Özden, Gorka Beitia Zarandona, Mila Dimitrovska, Albert Richters, Francisco Vilar Navarro, Iván Guerrero Jimenez, Onur Can Tepe, Giovanni Belotti
Danışman: Seda Kurt Şengün, Erim Gürdal, Ömer Uluğnoyan, Musa Şahin