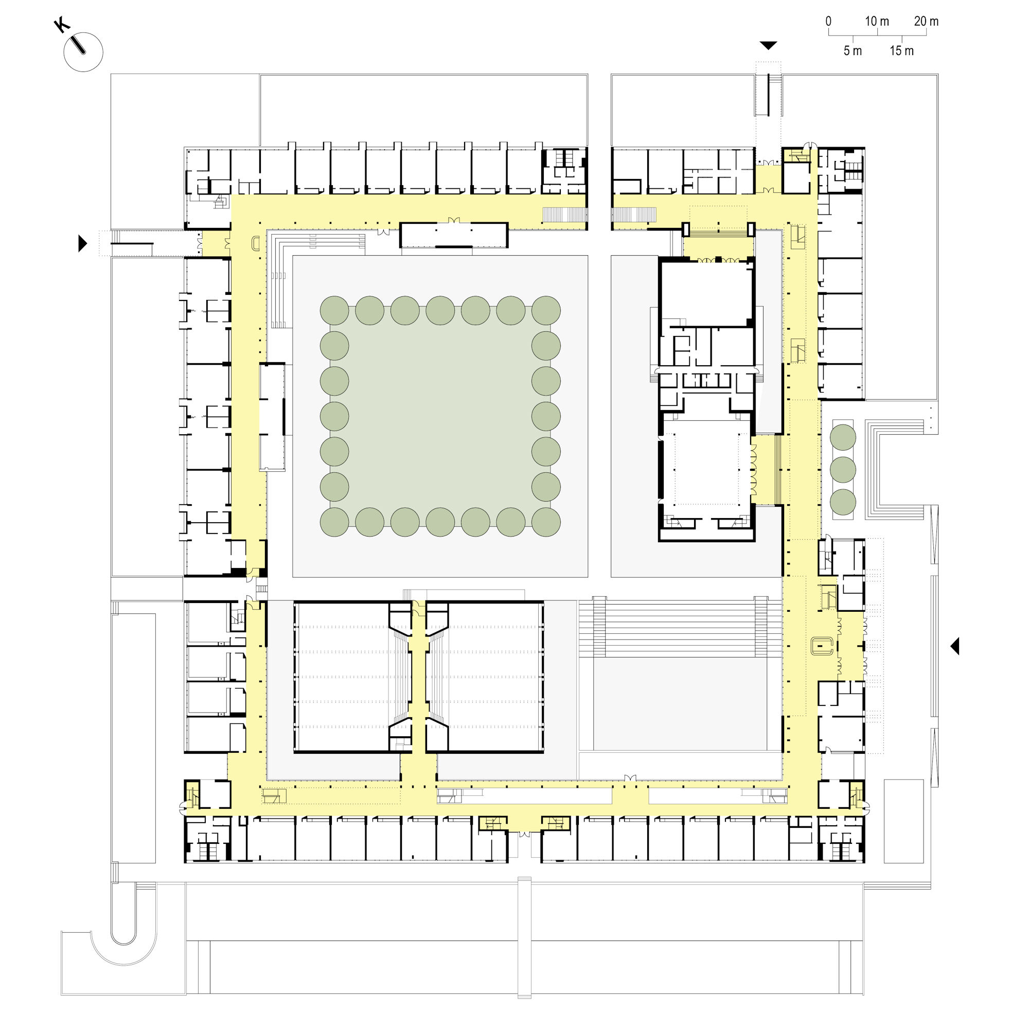
Zemin Kat Planı
26/28
Paylaş
Resmi Orjinal Boyutunda Göster
Haileybury Astana
Fotoğraflar: Cemal Emden
Proje Yeri: Astana
Proje Ofisi: Çinici Mimarlık
Tasarım Ekibi: Cem Katkat, Göksenin Ekiyorum, Tim Kovats, Can Çinici, Selim Koytak
İşveren: Capital Partners
Ana Yüklenici: Atastroy
Peyzaj Mimarlığı: DS Mimarlık
Statik Projesi: Atilla Çaydamlı, Fonksiyon Mühendislik
Mekanik Projesi: Mehmet Okutan, Okutan Mühendislik
Elektrik Projesi: Aykar Mühendislik, Mehmet Karadurak
Proje Başlangıç Yılı: 2009
Proje Bitiş Yılı: 2010
İnşaat Başlangıç Yılı: 2011
İnşaat Bitiş Yılı: 2011
Toplam İnşaat Alanı: 20.500 m2