17/17
Paylaş
Resmi Orjinal Boyutunda Göster
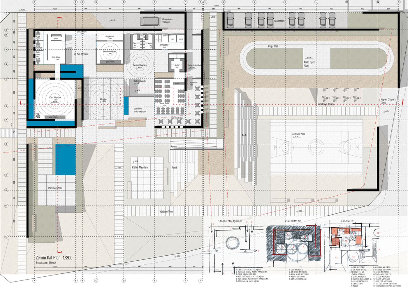
3. mansiyon
Proje Yeri: Beylikdüzü
Proje Tipi: Cemevi
Proje Tipi Grubu: 3. Mansiyon
Tasarım Ekibi: İbrahim Eyüp, Hakan Deniz Özdemir, Olcay Ovalı Eyüp
Danışman: Ersin Deniz Çınar, Berrin Yavuz, Ahmet Naci Boybada, Diana Serli Ohanesyan
Yardımcı: Hale Keskinalemdar