6/16
Paylaş
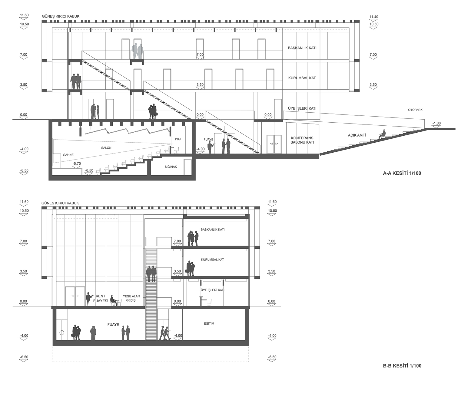
Resmi Orjinal Boyutunda Göster
2. Mansiyon (Mekan Atolyesi)
Proje Yeri: Muğla, Bodrum
Proje Ofisi: Mekan Atölyesi
Proje Tipi: Ofis
Proje Tipi Grubu: 2. Mansiyon
Tasarım Ekibi: Sinan Şerifoğlu, Cevahir Koçalan, Çetin Ayık, Fadime Kul, Suphi Alp