15/25
Paylaş
Resmi Orjinal Boyutunda Göster
1. Odul
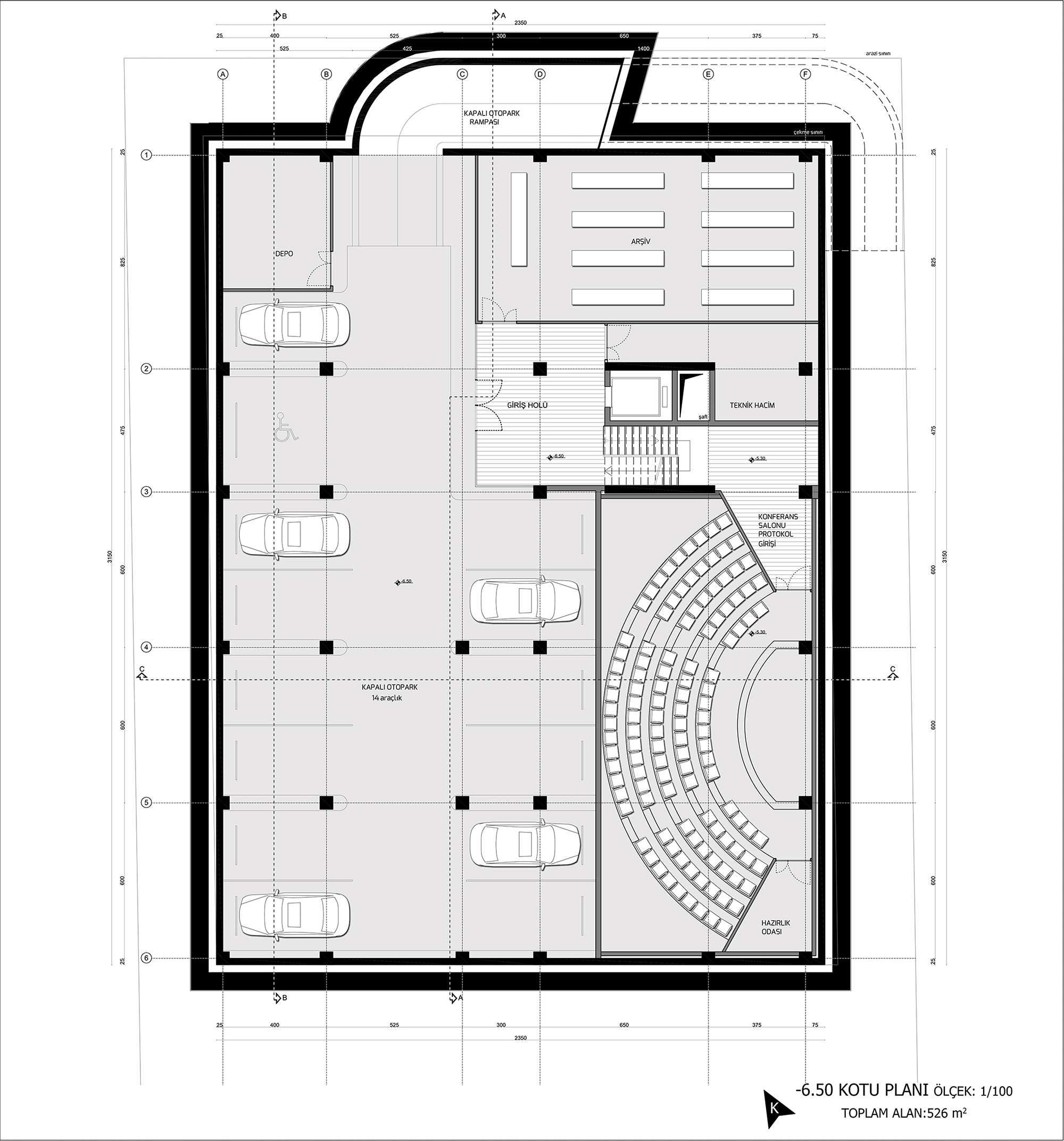
Proje Yeri: Muğla, Bodrum
Proje Ofisi: Stüdyo501, Burcu Artmış Mimarlık Ofisi
Proje Tipi: Ofis
Proje Tipi Grubu: 1. Ödül
Tasarım Ekibi: Burcu Çeşmeli, Cenk Çeşmeli, Müge Erkılıç
Danışman: Tolga Çeşmeli, Gülseren Büke, Hasan Akmazoğlu