10/18
Paylaş
Resmi Orjinal Boyutunda Göster
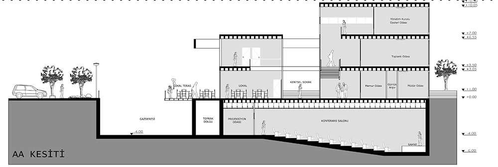
2. Odul
Proje Yeri: Muğla, Bodrum
Proje Tipi: Ofis
Proje Tipi Grubu: 2. Ödül
Tasarım Ekibi: Erol Kapiz, Okan Karakaş
Danışman: Cahit Karaöz, Ali Ulvi Avanoğlu, Ünay Afyonlu
Yardımcı: Ayşe Kuru Karakaş