20/28
Paylaş
Resmi Orjinal Boyutunda Göster
Başlığı girin
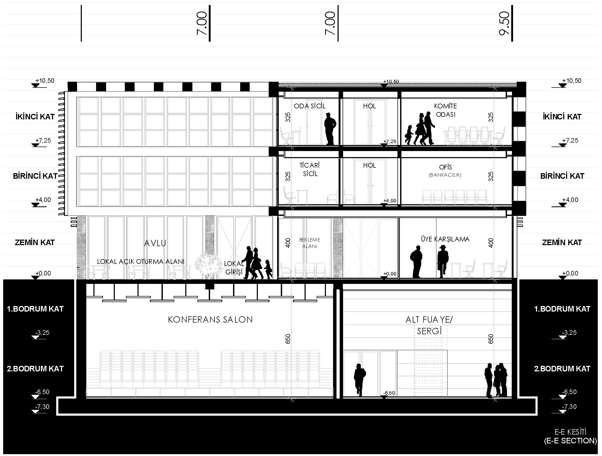
Proje Yeri: Muğla, Bodrum
Proje Tipi: Ofis
Proje Tipi Grubu: 1. Mansiyon
Tasarım Ekibi: Gül Çalışkan
Danışman: Abdülbaki Arslan, Alphan Şamdan, İbrahim Çetin
Yardımcı: Yüksel Aytemiz