8/12
Paylaş
Resmi Orjinal Boyutunda Göster
F
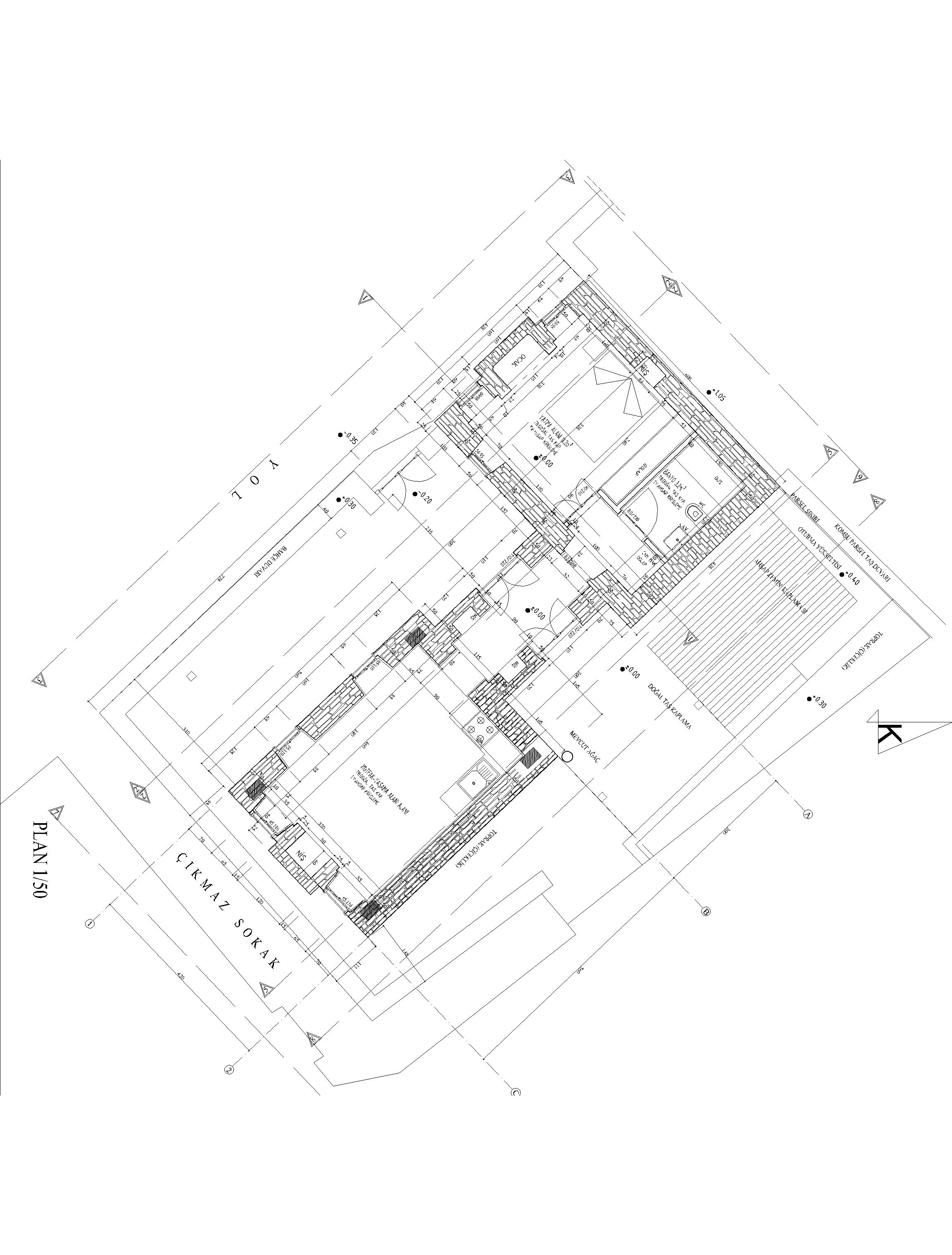
Proje Yeri: Datça, Muğla
Proje Ofisi: F ve F Mimarlık
Proje Tipi: Tek Ev / Villa
Proje Tipi Grubu: Konut
Tasarım Ekibi: Figen Gürsoy Yaşyerli, Ferhat Yaşyerli
İşveren: Ferhat Yaşyerli
Ana Yüklenici: F ve F Mimarlık
Peyzaj Mimarlığı: Ferhat Yaşyerli
Proje Yöneticisi: Ferhat Yaşyerli
Konsept Tasarımı: Figen Gürsoy Yaşyerli
Uygulama Projesi: Ferhat Yaşyerli
Statik Projesi: Özer Kolcuoğlu
Mekanik Projesi: Ali Ulvi Avanoğlu
Elektrik Projesi: Mehmet Kürşat
Mimari Mesleki Kontrollük: Ferhat Yaşyerli
Şantiye Yöneticisi: Ferhat Yaşyerli
Proje Başlangıç Yılı: 2014
Proje Bitiş Yılı: 2015
İnşaat Başlangıç Yılı: 2015
İnşaat Bitiş Yılı: 2015
Arsa Alanı: 140 m2
Toplam İnşaat Alanı: 60 m²