4/5
Paylaş
Resmi Orjinal Boyutunda Göster
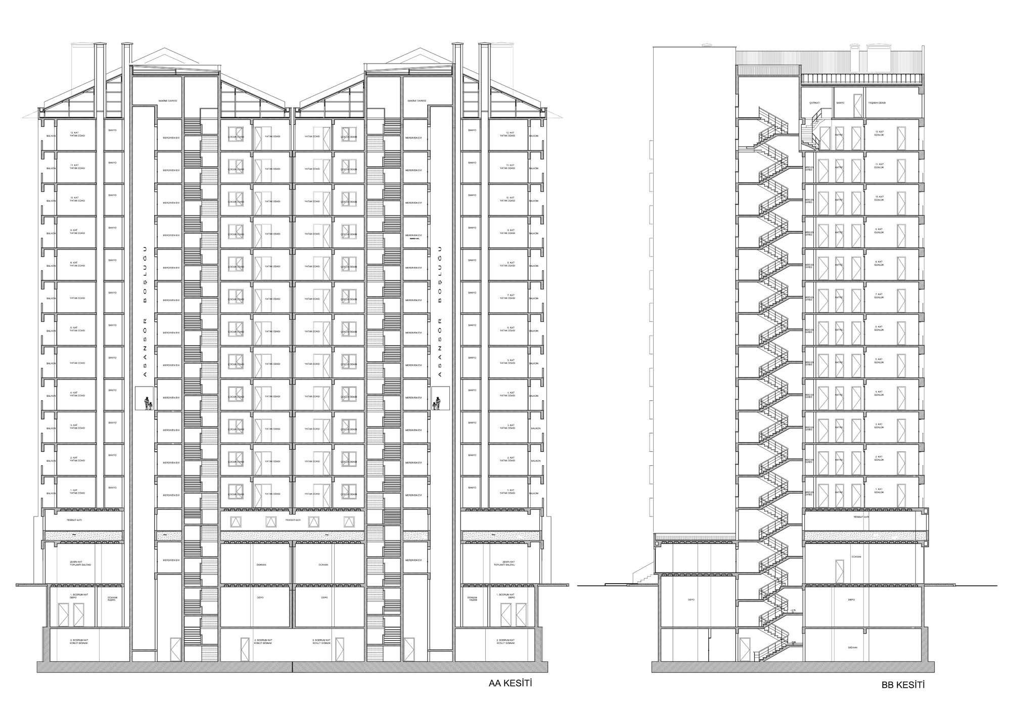
Gelibolu Konutları
Proje Yeri: Kayseri
Proje Ofisi: Turim Mimarlık
Proje Tipi: Konut Sitesi / Grubu
Proje Tipi Grubu: Konut
Tasarım Ekibi: Kemal Demir, Ozan Binboğa, Kıtay Durmuş
İşveren: Özka İnşaat
Ana Yüklenici: Özka İnşaat
Statik Projesi: Yener Torunoğlu
Proje Başlangıç Yılı: 2006
Proje Bitiş Yılı: 2006
İnşaat Başlangıç Yılı: 2007
İnşaat Bitiş Yılı: 2009
Arsa Alanı: 4,563 m2
Toplam İnşaat Alanı: 15,896 m2