13/13
Paylaş
Resmi Orjinal Boyutunda Göster
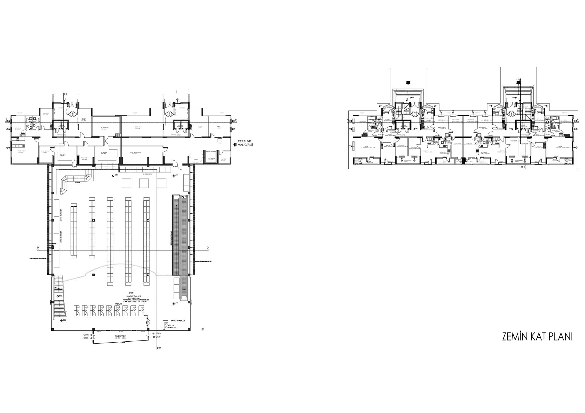
Gültepe Konutları
Proje Yeri: Kayseri
Proje Ofisi: Turim Mimarlık
Proje Tipi: Konut Sitesi / Grubu
Proje Tipi Grubu: Konut
Tasarım Ekibi: Kemal Demir, Ozan Binboğa, Kıtay Durmuş
İşveren: Numanoğlu İnşaat
Statik Projesi: Hüseyin Özbağ
Proje Başlangıç Yılı: 2004
Proje Bitiş Yılı: 2004
İnşaat Başlangıç Yılı: 2004
Arsa Alanı: 8,689 m2
Toplam İnşaat Alanı: 29,853 m2