14/20
Paylaş
Resmi Orjinal Boyutunda Göster
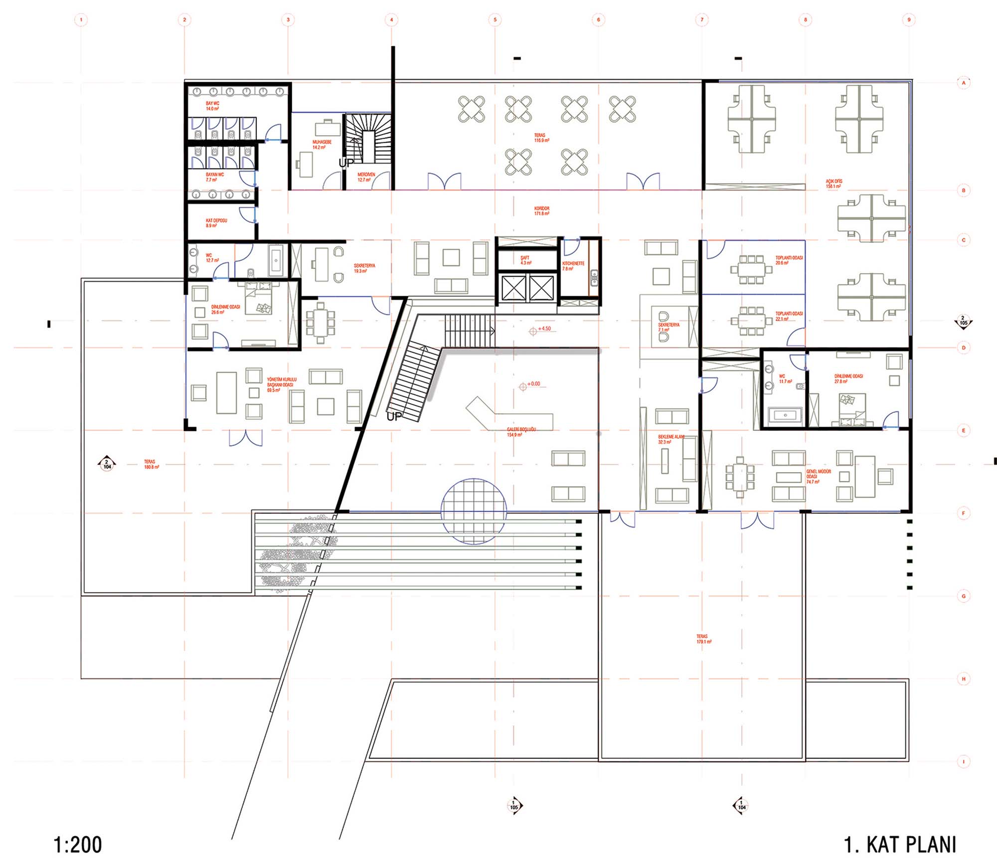
Uluova Süt AŞ Operasyon Binası
Project Location: Ezine, Çanakkale
Project Office: Arten DC
Project Type: Offices
Proje Tipi Grubu: Commercial
Tasarım Ekibi: Çağrı Küçükay
Employer: Uluova Süt
Yardımcı: Özge Merve Kozalan, Gökdeniz Tüzün, Ayşegül Şakar
Ana Yüklenici: El Ev En İnşaat
Structural Project: Tuncer Mühendislik
Project Start Date: 2014
Construction Start Date: 2014
Building Plot Area: 2,219 m²
Total Construction Area: 2,800 m2