18/22
Paylaş
Resmi Orjinal Boyutunda Göster
Başlığı girin
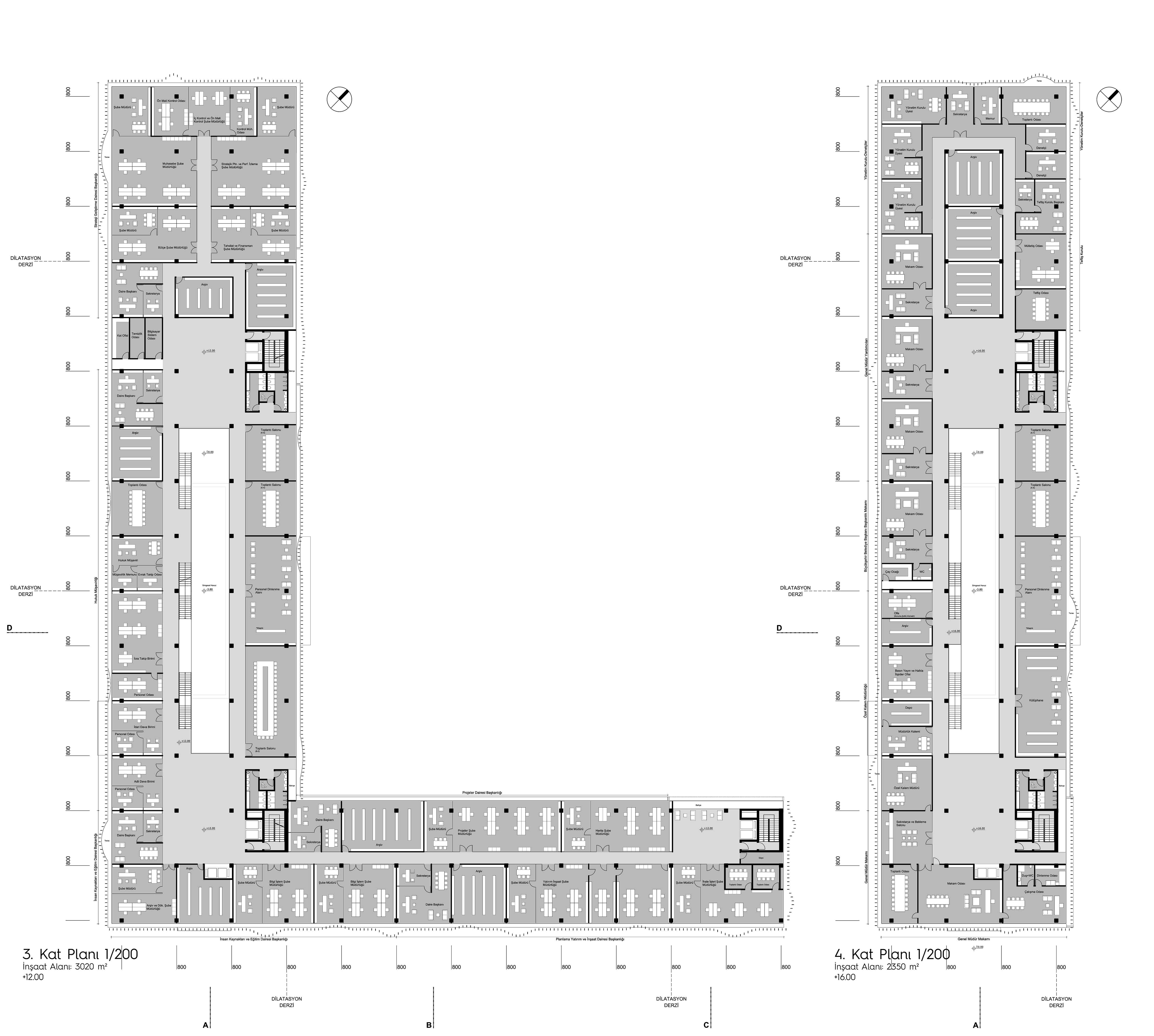
Project Location: Tekirdağ
Project Type: Public Administration Building
Proje Tipi Grubu: Katılımcı
Tasarım Ekibi: Emre Engin, Yeşim Doğan
Consultant: Mustafa Salih Yıkar, Kübra Öztaş, Didem Üner
Yardımcı: Elif Ranaer, Emine Esra Buğan
Structural Project: Eren Pınar
Mechanical Project: Egemen Çetin
Electrical Project: Ruşen Balkan