13/18
Paylaş
Resmi Orjinal Boyutunda Göster
3. Ödül
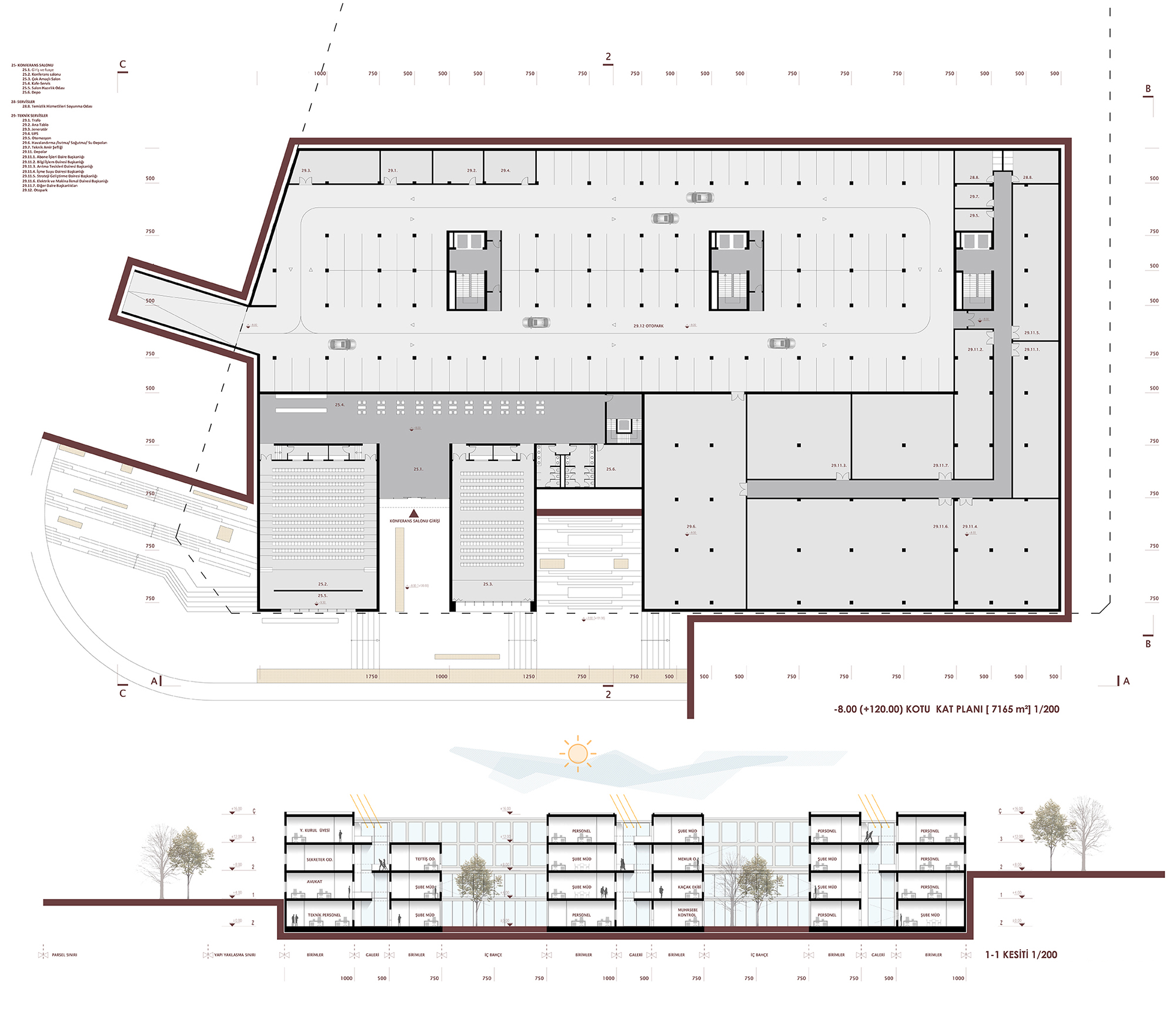
Project Location: Tekirdağ
Project Type: Public Administration Building
Proje Tipi Grubu: 3. Ödül
Tasarım Ekibi: Oknur Çalışkan
Consultant: Didem Özkızılcık, Ahmet Erdem Haberdar, Hayri Aydın, Mehmet Zeyat Hattapoğlu, Mustafa Soyer