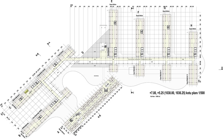
+7 Kot Planı
5/32
Paylaş
Resmi Orjinal Boyutunda Göster
2. Ödül, Dışişleri Bakanlığı Yarışması
Project Location: Ankara
Project Type: Public Administration Building
Proje Tipi Grubu: 2. Ödül
Tasarım Ekibi: Semra Uygur, Özcan Uygur
Yardımcı: Ebru Can Bilhan, Necati Seren, Güliz Erkan, Emine Kirman, Kürşat Yurdakul, Eser Köken İşleyici, Dilşad Kurtoğlu, Berkant Özmen, İrem Erdinç, Ekin Uygur, Deniz Uygur, Mehmet Savaş