33/34
Paylaş
Resmi Orjinal Boyutunda Göster
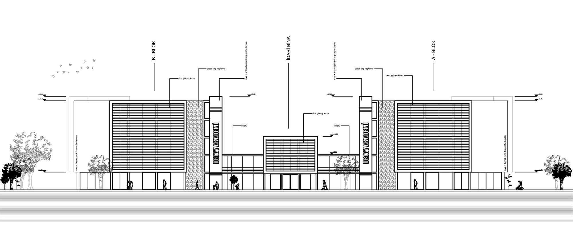
Detay Akademi Okulları
Proje Yeri: Kadirli, Osmaniye
Proje Ofisi: Eren Tümer Mimarlık Ofisi [ETMO]
Proje Tipi: Lise / Ortaöğretim, İlkokul, Anaokulu / Kreş
Proje Tipi Grubu: Eğitim
Tasarım Ekibi: Eren Tümer, Emrah Mehmet Güllüoğlu
Mimari Proje Ekibi: Hicran Karabıyık
İşveren: Detay Akademi Okulları
Yardımcı: Kevser Kayacık
Peyzaj Mimarlığı: Filiz Savatlı
İç Mekan Projesi: Tolga Taşkın
Statik Projesi: Erhun Oskay
Mekanik Projesi: Mahmut Kaya
Elektrik Projesi: Güney Odak Mühendislik
Tesisat Projesi: Mahmut Kaya
Maket: Mehmet Akif Ersoy
Fotoğraf: Cihan Yüce
Proje Başlangıç Yılı: 2014
Proje Bitiş Yılı: 2014
İnşaat Başlangıç Yılı: 2014
İnşaat Bitiş Yılı: 2015
Arsa Alanı: 5,136 m2
Toplam İnşaat Alanı: 7,470 m2