9/9
Paylaş
Resmi Orjinal Boyutunda Göster
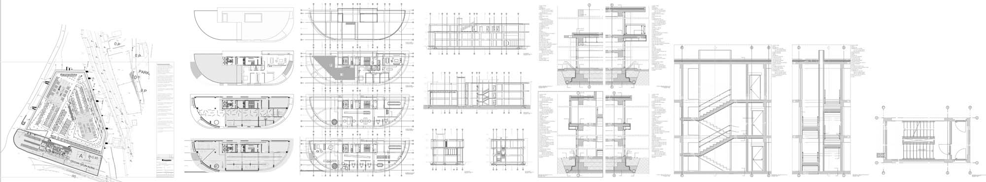
B1-2
Project Location: Başakşehir, İstanbul
Project Office: MeMA ve merteyiler, Halukar Mimarlık, Atölye Mayıs, Mahal Mimarlık
Project Type: Apartment, Housing Complex
Proje Tipi Grubu: Konut
Tasarım Ekibi: Mert Eyiler, Özden Demir
Employer: Bigottoman İnşaat
Yardımcı: Audrey Aydın
Projcet Manager: Oral Doğu, 2d Yapı-Zemin Mühendislik
Structural Project: Yapı Akademisi, Alparslan Durmuş
Mechanical Project: Ecvet Çelik
Electrical Project: Falke Mühendislik
Altyapı Projesi: Ömer Demir
Project Start Date: 2014
Building Plot Area: 20,434 m2
Total Construction Area: 105,178 m2