18/24
Paylaş
Resmi Orjinal Boyutunda Göster
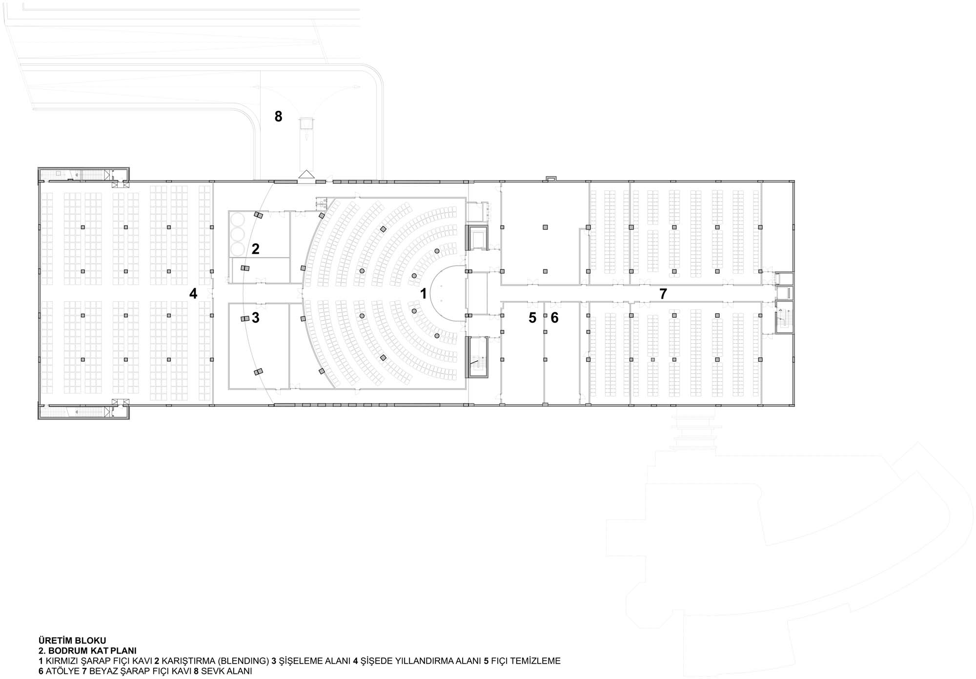
Vinero sarap Fabrikası
Project Location: Çanakkale
Project Office: Tekeli-Sisa Mimarlık Ortaklığı
Project Type: Fabrika , Winery
Proje Tipi Grubu: Endüstriyel, Commercial
Architectural Project Team: Dilgün Saklar, Alper Gürtekin, Aydın Bilgi, Ceren Erman, Ceylan Cöbek, Hüsne Cavlak, Nazlı Melis Kocamanoğlu, Neslihan Can, Zeynep Betül Çelikel
Employer: Sanset Gıda A.Ş.
Peyzaj Mimarlığı: DS Mimarlık
Interior Architecture: CM Mimarlık
Structural Project: MPI Mühendislik
Electrical Project: Enkom Mühendislik
Plumbing Project: Prokem Mühendislik
Photography: Cemal Emden
Project Start Date: 2012
Construction End Date: 2015