41/52
Paylaş
Resmi Orjinal Boyutunda Göster
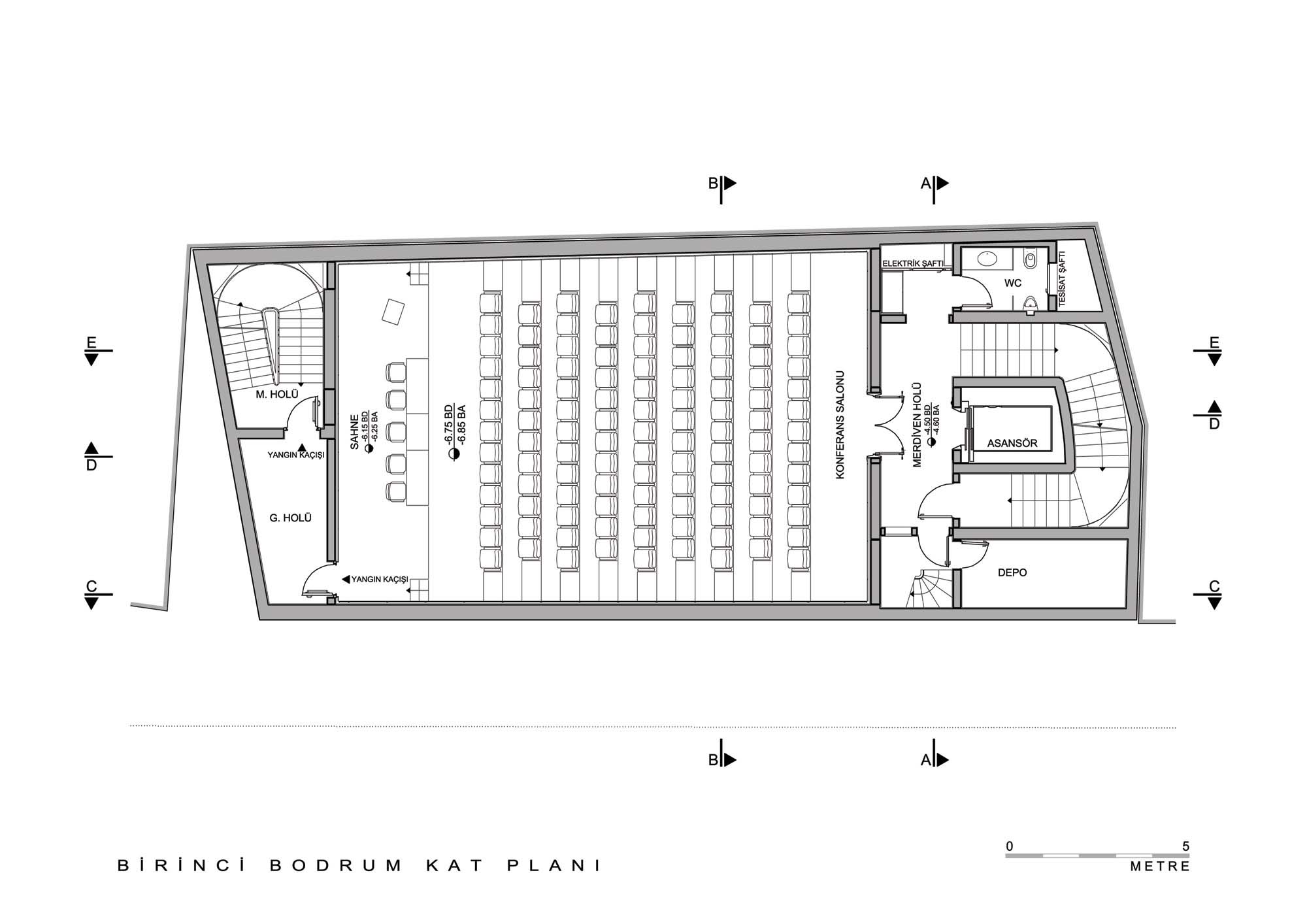
AKS Antalya Kültür Sanat Merkezi
Proje Yeri: Antalya, Muratpaşa
Proje Ofisi: Yenilem Mimarlık
Proje Tipi: Sergi Mekanı / Galeri
Proje Tipi Grubu: Kültür
Tasarım Ekibi: Sinan Genim, Belma Barış Kutel
İşveren: Antalya Ticaret ve Sanayi Odası (ATSO), Sinan Genim
Yardımcı: Özgen Esen, Hülya Çavuşoğlu, Begüm Humaçoğlu, Elif Özmener, Damla Katuk, Merve Ateş
Ana Yüklenici: Efekt Mühendislik ve İnşaat, Erdinç Karaman
Proje Yöneticisi: Sinan Genim
Konsept Tasarımı: Sinan Genim
Uygulama Projesi: Sinan Genim, Belma Barış Kurtel
Cephe Tasarımı: Sinan Genim
Aydınlatma Projesi: Tepta Aydınlatma
Statik Projesi: Fonksiyon Mühendislik, Attila Çaydamlı, Feridun Gültekin
Mekanik Projesi: Hasel, Selim Evyapan
Elektrik Projesi: Dasel, Korkut Daşdemir
Tesisat Projesi: Hasel, Selim Evyapan
Çelik Projesi: Fonksiyon Mühendislik
Altyapı Projesi: Attila Çaydamlı, Feridun Gültekin
Akustik Projesi: Hasel, Selim Evyapan, Bose, Mustafa Şahin
Yangın Tahliye Projesi: Hasel, Selim Evyapan
Maket: Ahmet Demirtaş
Fotoğraf: Cemal Emden
Mimari Mesleki Kontrollük: Sinan Genim
Şantiye Yöneticisi: Efekt Mühendislik ve İnşaat, Erdinç Karaman
Proje Başlangıç Yılı: 2013
Proje Bitiş Yılı: 2015
İnşaat Başlangıç Yılı: 2013
İnşaat Bitiş Yılı: 2015
Arsa Alanı: 261 m²
Toplam İnşaat Alanı: 1,996 m2