6/8
Paylaş
Resmi Orjinal Boyutunda Göster
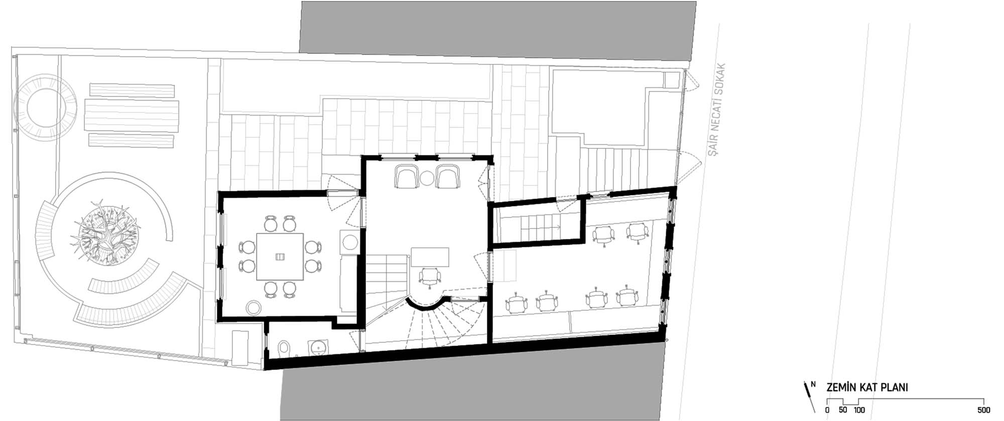
Şair Necati 33
Proje Yeri: Beşiktaş, İstanbul
Proje Ofisi: HS Mimarlık
Proje Tipi: Ofis
Proje Tipi Grubu: Ticari
Tasarım Ekibi: Hayriye Sözen
İşveren: Niceye Group
Yardımcı: Gamze Altın
Fotoğraf: Hayriye Sözen
Proje Başlangıç Yılı: 2015
İnşaat Bitiş Yılı: 2015
Arsa Alanı: 199 m2
Toplam İnşaat Alanı: 264 m2