18/20
Paylaş
Resmi Orjinal Boyutunda Göster
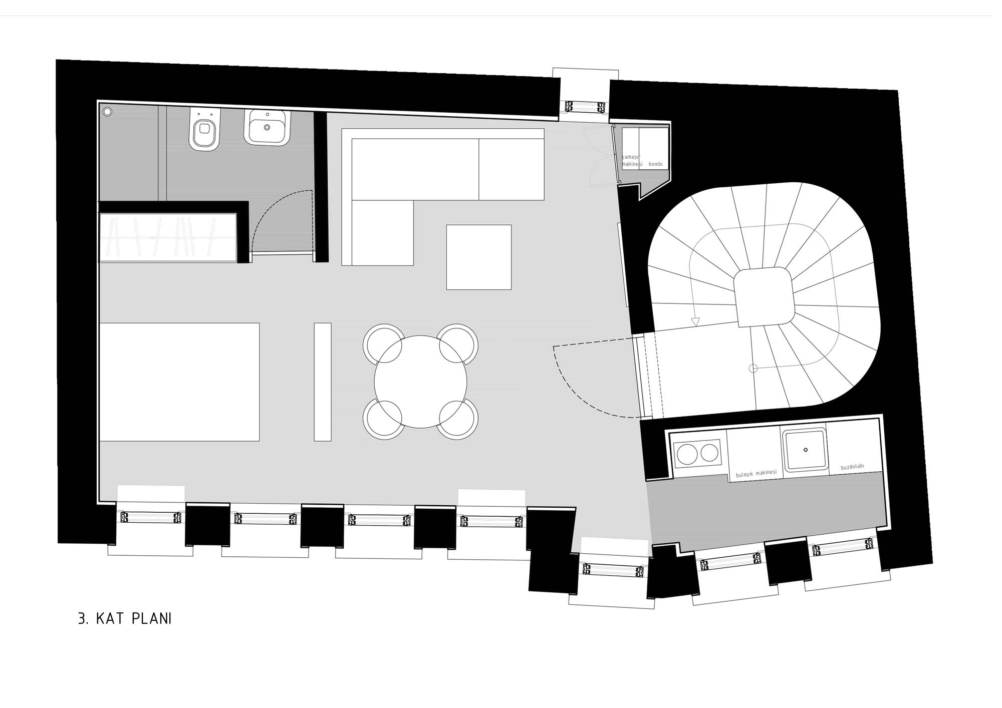
Çukurcuma 11
Proje Yeri: Beyoğlu, İstanbul
Proje Ofisi: HS Mimarlık
Proje Tipi: Apartman
Proje Tipi Grubu: Konut
Tasarım Ekibi: Hayriye Sözen
Yardımcı: Erman Soyman, Gamze Altın, Pınar Bayraktar
İç Mekan Projesi: HS Mimarlık, Eril Şerbetci
Proje Başlangıç Yılı: 2012
İnşaat Başlangıç Yılı: 2012
İnşaat Bitiş Yılı: 2013
Arsa Alanı: 51 m2
Toplam İnşaat Alanı: 257 m2