6/6
Paylaş
Resmi Orjinal Boyutunda Göster
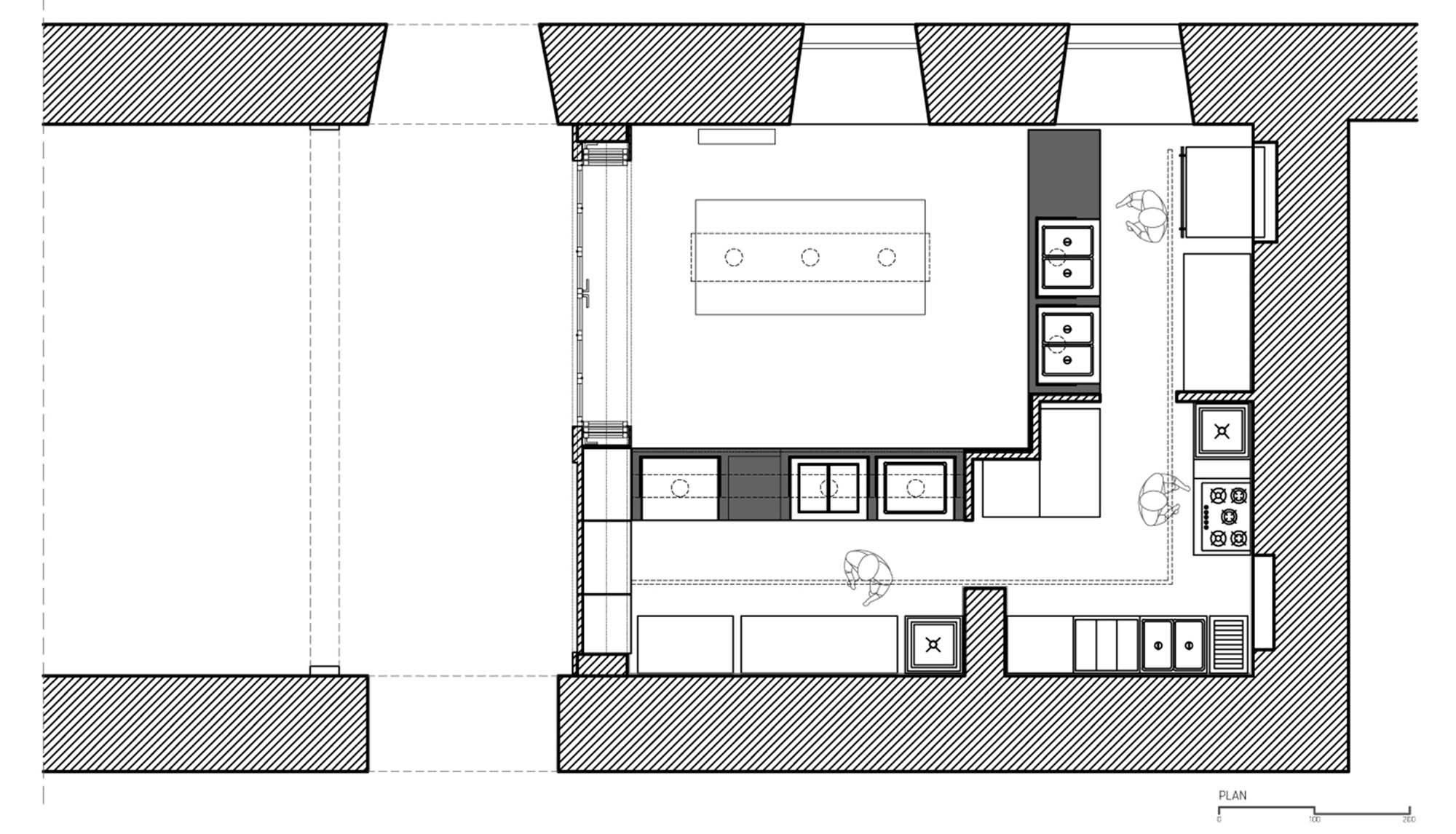
Harikalar Mutfağı
Proje Yeri: Sarıyer, İstanbul
Proje Ofisi: HS Mimarlık
Proje Tipi: Restoran / Kafe / Bar
Proje Tipi Grubu: Ticari
Tasarım Ekibi: Hayriye Sözen
İşveren: Wonderland
Yardımcı: Erman Soyman
İç Mekan Projesi: HS Mimarlık, Melsen Tunca İşeri
Proje Başlangıç Yılı: 2012
İnşaat Bitiş Yılı: 2012
Toplam İnşaat Alanı: 50 m2